Umweltbewusst und effizient

Gemütlich und praktisch
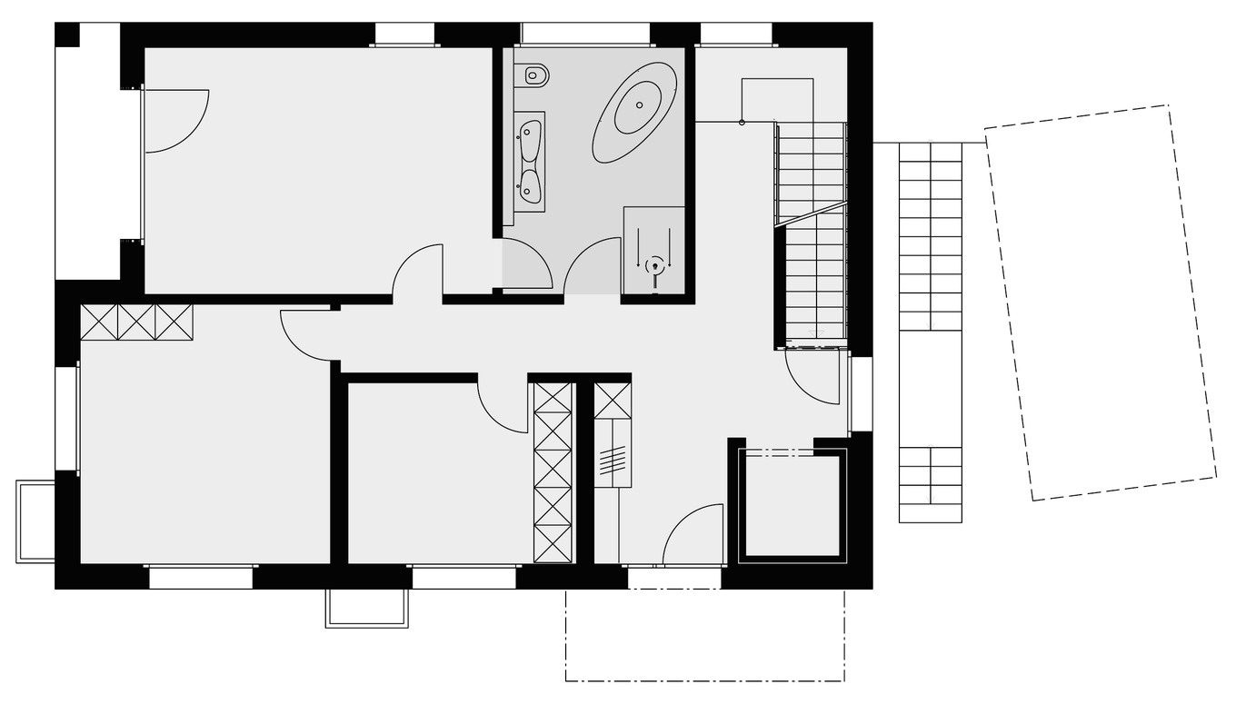
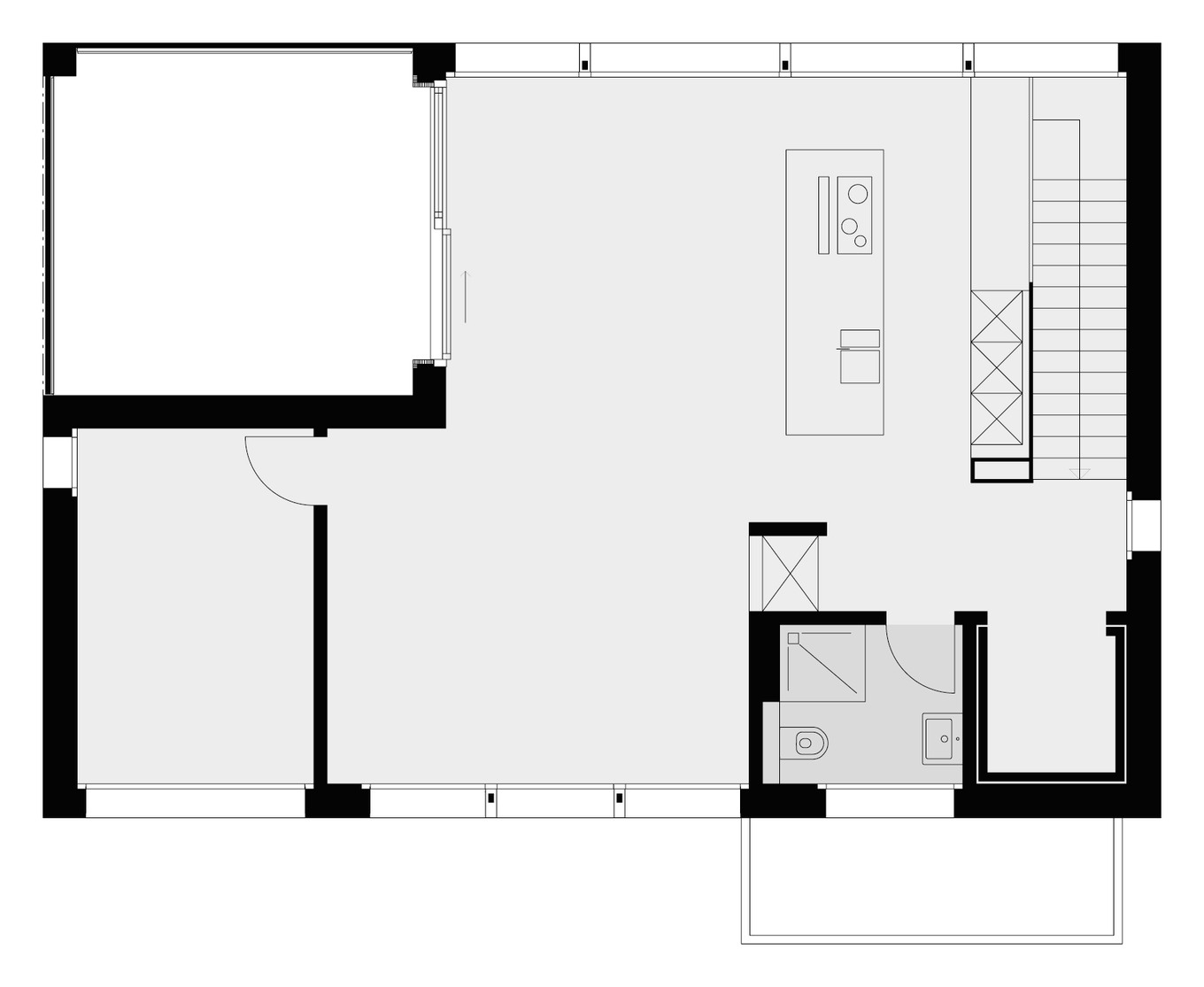
Geräuchertes Eichenparkett zieht sich durch das gesamte Haus, auch durch die Küche, und verleiht den Räumen eine behagliche Atmosphäre. Nur die Badezimmer sind mit elegant grauen Feinsteinzeugplatten ausgekleidet. Im Erdgeschoss befindet sich der Eingangsbereich mit geräumiger Garderobe. Praktische Einbauschränke schaffen hier Ordnung. Ein Kinderzimmer und ein Büro schliessen sich unmittelbar an den Eingangsbereich an. Den Eltern steht ein Schlafzimmer mit angrenzendem Bad zur Verfügung. Dieses ist auch vom Gang her erschlossen und mit einer frei stehenden Badewanne und einer Walk-in-Dusche ausgestattet.
Nach Minergie-Standard gebaut
Dieses Haus ist im Minergie-P-Eco-Standard gebaut – es ist also ein Niedrigst-Energie-Gebäude, das die hohen Anforderungen an eine gesunde und ökologische Bauweise erfüllt. Geheizt wird mit einer umweltfreundlichen Sole-Wasser-Wärmepumpe. Ein geräumiger Kellerraum steht der Familie zur Verfügung. Neben der kompletten Haustechnik befinden sich Doppelgarage und Waschraum ebenfalls auf dieser Ebene. Abgesehen von der Treppe führt auch ein rollstuhlgängiger Lift aus der Garage direkt in die Wohngeschosse – eine grosse Erleichterung, falls es einmal zu einer Gehbehinderung kommen sollte. Aber auch im Alltag wird sich der Lift als nützlich erweisen, um beispielsweise den Wocheneinkauf zur Küche im obersten Stockwerk zu transportieren.
TECHNISCHE ANGABEN


Konstruktion: Holzsystembau, Beton/Kalksandstein im UG | Satteldach | Fassade: Falzschalung in Holz, Fichte/Tanne sägeroh, UG verputzt Raumangebot: Nettowohnfläche 323 m² | 6 Zimmer Ausbau: Boden: Eichenholzparkett, Feinsteinzeugplatten in den Badezimmern | Wände: Erfurt Vliesfaser, Feinsteinzeugplatten in den Badezimmern | Fenster: Holz-Metall-Fenster Technik: Sole-Wasser-Wärmepumpe, Komfortlüftung mit Wärmerückgewinnung | Minergie-P-Eco
Renggli AG
St. Georgstrasse 2, 6210 Sursee | Tel. 041 925 25 25










