Freier Blick ins Freiamt

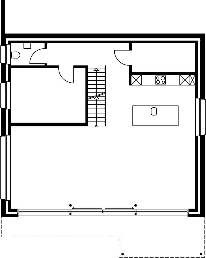
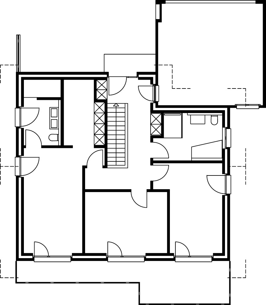
Hanglage beeinflusst Raumaufteilung
Dem Wunsch der Eignerfamilie nach einem zeitlosen Erscheinungsbild wurde mit einer äusserlich konventionellen Lösung mit Satteldach und viel Glas entsprochen. Die Erschliessung der Parzelle erfolgte von oben hangabwärts, was zu einer speziellen Raumaufteilung im Obergeschoss führte. Denn dort befindet sich die Garage, daneben der Hauseingang sowie die teilweise mit einladenden Balkonen ausgestatteten Schlafzimmer. Vom hellen Eingangsbereich führt eine Treppe hinunter in den Wohnbereich. Hier besticht das Eigenheim mit sehr grosszügiger Gestaltung. Die moderne, geräumige und top ausgestattete Küche mit frei stehender Anrichte ist von der Treppe mit einer Glaswand abgetrennt. Sie geht in den Ess- und Wohnbereich über, in dem ein gediegenes Eichenparkett in Kombination mit Sichtbeton ein urbanes Flair vermittelt. Eine grosse Fensterfront gibt den Blick frei auf die geräumige Terrasse, und von dort hat man eine spektakuläre Weitsicht über die sanften Hügel, Felder und Wälder des Unteren Freiamts. Zusätzlich befindet sich im Erdgeschoss noch ein Arbeitszimmer. Im Untergeschoss sind die Kellerräume und der Technikraum.
Auf hohem Niveau
Der Ausbau der Liegenschaft entspricht dem Idealbau-Niveau «Premium». Das gilt nicht zuletzt auch für die in noblem Grau und mit grossen Feinsteinzeugplatten ausgestatteten Nassräume. Das Haus ist voll unterkellert, und für Behaglichkeit sorgt eine von einer Luft-Wasser-Wärmepumpe gespeiste Bodenheizung.
TECHNISCHE ANGABEN


Konstruktion: Massivbauweise | Satteldach | Wände: UG: Kalksandstein, EG: Backstein, Beton, OG: Backstein Raumangebot: Nettowohnfläche 182,3 m² | 5,5 Zimmer Ausbau: Boden: EG/OG: Parkett, Nasszellen: Feinsteinzeug | Wände: Fertigabrieb, gestrichen, Bäder: Feinsteinzeug sowie Abrieb, gestrichen | Decken: UG: Beton, EG/OG: Weissputz | Fenster: Kunststoff-/Aluminiumfenster, Dreifachverglasung Technik: Luft-Wasser-Wärmepumpe, Bodenheizsystem
Idealbau AG
4922 Bützberg | Tel. 062 958 86 86
info@idealbau.ch | idealbau.ch










