Wie im Paradies
Wenn Architekten ihr eigenes Haus bauen, ist das etwas ganz Besonderes. Der in Norwegen lebende kanadische Architekt Todd Saunders hat in der regenreichsten Stadt Europas ein zauberhaftes Refugium für seine Familie geschaffen.

Es gibt kein schlechtes Wetter
Das norwegische Wetter spielte bei der Planung eine bedeutende Rolle. «Wir haben rund 300 Regentage im Jahr», sagt Trude Saunders. Bergen ist somit die regenreichste Stadt Europas. Wenn es aber um die raue Natur geht, bewegt sich ihr Mann Todd auf keinem unbekannten Terrain. Schliesslich ist er für seine markanten, geometrischen Pavillons auf Fogo Island im wilden Neufundland Kanadas bekannt. Er meisterte diese Herausforderung, die ihm das Wetter stellte, durchaus elegant. Den Baukörper formte er aus zwei Hauptstrukturen: einem vertikalen, 9 Meter hohen Turm und einem horizontalen, 35 Meter langen und 6 Meter breiten Element. Auf diese Weise erhielt das Haus einen schwebenden Charakter und gedeckte Aussenräume. Mehrere Terrassen mit schwellenlosen Übergängen erlauben es den Kindern, sich sicher und unbeschwert zwischen drinnen und draussen zu bewegen und damit auch bei Regenwetter an der frischen Luft zu spielen.
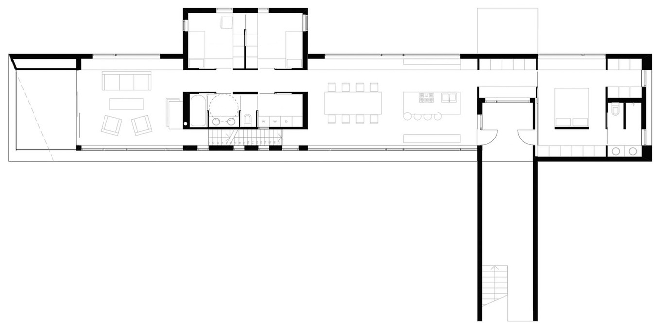
Der Regen bestimmte auch die Fassade des Hauses der Familie Saunders, so wie bei den Häusern der Einheimischen auch. «In den umliegenden Wäldern werden die Baumstämme durch den ständigen Regen schwarz», erklärt Saunders, «so bestehen auch die lokalen Häuser aus schwarz gebeiztem Holz, um sich in die Naturlandschaft zu integrieren.» Auf die traditionelle Vorgehensweise ging der Architekt ein. Er nutzte diese Ausgangslage eines schwarzen Äusseren, um im Hausinneren einen starken Kontrast durch viel Weiss zu kreieren und die Lichtreflexion zu maximieren. Vom überdachten Eingangsbereich, der mit den Schaukeln zum ersten Spielplatz der Mädchen zählt, geht es ins Erdgeschoss, wo ein Spielzimmer auf die Kinder und ihre Freunde wartet. Hell, einladend und mit ausgewähltem Interieur gibt das Entree einen Vorgeschmack auf den skandinavischen Einrichtungsstil, der sich wie ein roter Faden durch alle Räume zieht.
Skandinavisch Wohnen in voller Länge
Eine massgefertigte, schwebende Treppe führt zu den Etagen. Im Obergeschoss liegt die Mastersuite der Eltern im Westflügel, die beiden Kinderzimmer auf der gegenüberliegenden Seite. Saunders erzählt, wie es seine älteste Tochter liebe, von ihrem Zimmer aus die hohen Bäume im Wald zu bestaunen, während seine Bedürfnisse etwas einfacher sind. «Ich brauche drei Schritte zum Badezimmer und vier zur Kaffeemaschine.» Zwischen den Privaträumen liegt der Wohnbereich mit Küche und damit das Herz des Hauses, so wie es sich seine Tochter gewünscht hatte. Der lange Raum wird durch ein Cheminée in einen Koch-Ess-Bereich und ein gemütliches Wohnzimmer gegliedert. Die Weitläufigkeit des Wohnbereichs wird durch die eleganten, 14 Meter langen Dielen von Dinesen zusätzlich betont. Auf dem Dachgeschoss befindet sich das, was Todd Saunders den grössten Luxus der Familie nennt: eine rund 40 Quadratmeter grosse Bibliothek. «Wir sind alle verrückte Büchernarren», sagt er. Hier kann die ganze Familie lesen und sein, umgeben von den Büchern, die sie lieben. Grosse Fenster bringen auf jeder Etage viel Tageslicht ins Haus. Nachts schimmert das Licht der Innenleuchten durch die Glasflächen, dadurch wirkt das Haus wie eine riesige Laterne, was alles in eine märchenhafte Stimmung taucht.
Die Möbel und Einrichtungsgegenstände wurden zusammen mit dem renommierten schwedischen Künstler Hannes Wingate ausgewählt. Wingate kuratierte eine Sammlung von Stücken, welche die Geometrie der Räume hervorheben und mit dem modernistischen Gebäude harmonieren. Es überrascht deshalb nicht, dass dazu sowohl dänische Klassiker als auch moderne Küchenbarhocker von Søren Rose gehören. Hier scheinen die Worte von Architekt William Morris gelebt zu werden. Dieser sagte: «Habt nichts in euren Häusern, von dem ihr nicht sicher wisst, dass es nützlich ist, oder von dem ihr nicht glaubt, dass es schön ist.» Obwohl Saunders anerkennt, dass das Haus funktional ist, verabscheut er die moderne «Immobilienmakler»-Konnotation dieses Wortes. Das Haus strahlt vielmehr ein warmes und solides Ambiente aus, als einen minimalistischen Funktionalismus zu demonstrieren. Die reduzierte Formensprache, das aus der umliegenden Natur abgeleitete Farbkonzept und die Verwendung von Naturmaterialien erinnern an Frank Lloyd Wrights organischen Modernismus, der die Harmonie von Gebäude und Landschaft zum Ziel hat. «Es ist ein Familienhaus», sagt Saunders. «Wir haben, was wir brauchen, und es gibt nichts, was wir nicht benutzen würden.» In der Tat scheint es, dass sie in Paradis alles und noch viel mehr haben.
TECHNISCHE ANGABEN



[ ARCHITEKTUR ]
Todd Saunders, Saunders Architecture | saunders.no
[ KONSTRUKTION ]
Holzbau | Flachdach | Fassade: Holzschalung
[ Raumangebot ]
Nettowohnfläche: 350 m² | Anzahl Zimmer: 7,5
[ Ausbau ]
Boden: Holzdielen, Estrich | Wände: Holz, Verputz, Platten | Decken: Holz
[ Technik ]
Erdwärmepumpe | Bodenheizung | Cheminée
























