Tessiner Panorama
Wie ein Ufo, das am Steilhang gelandet ist, schwebt dieses Haus über dem Lago Maggiore. Seine besondere Form ist keine architektonische Extravaganz, sondern eine durchdachte, praktische Antwort auf die Umgebung und die Bedürfnisse der Bewohner.

Modern mit einem Touch Tessin
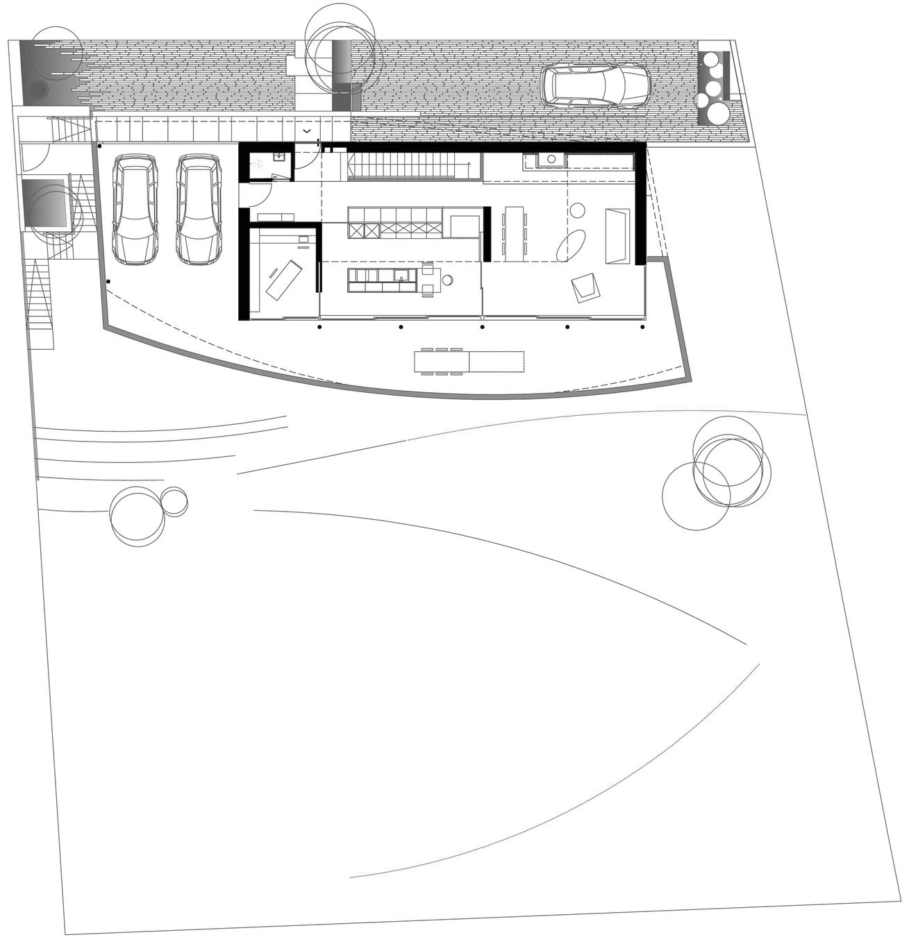
Zur Strasse hin präsentiert sich das Haus geschlossen: Eine lange Mauer zieht sich von der Garage bis zum Garten auf der gegenüberliegenden Seite durch. Um Besucher zu führen, hoben Architekt und Bauherr die Eingangstüre mit einem Steinblock hervor, neben dem ein Olivenbaum wächst. Wer das Haus betritt, gelangt zunächst in einen hellen Eingangsbereich. Das Flachdach biegt sich an dieser Stelle nach oben, um Platz für einen langen Fensterstreifen zu machen. Nach Süden ausgerichtet sorgt der Streifen dafür, dass auch im Winter genügend Tageslicht vorhanden ist. Eine Wand trennt den Eingangsbereich von der Küche. Von hier aus öffnet sich dem Besucher erstmals der Blick auf den Lago Maggiore. Die Küche, die aus einer Zeile und einer grosszügigen Kochinsel besteht, ist ganz auf die Aussicht ausgerichtet: Beim Kochen oder Spülen auf der Insel blickt man direkt aus dem Fenster, beim Rüsten auf der Zeile reflektiert sich das Panorama in der verspiegelten Rückwand. Zur einen Seite der Küche liegt ein kleiner Raum, den der Bauherr als Büro und als Atelier nutzt. Auf der anderen Seite öffnet sich das Wohn- und Esszimmer, in dem die grauen Bodenplatten von Eichenparkett abgelöst werden. Ein langes Einbaumöbel mit Cheminée prägt das Wohnzimmer. «Das war ein Entwurf des Architekten», erklärt der Bauherr. «Der Fernseher lässt sich so hinter einem Schiebepaneel verstecken, und wir gewinnen sehr viel Stauraum.» Mit seiner langen Steinbank bringt das Cheminée zudem ein Stückchen Tessin ins Interieur.
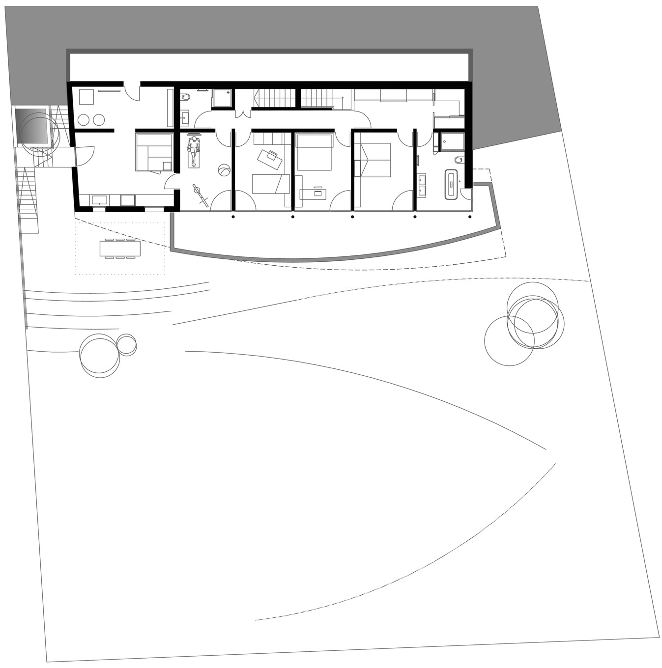
Der Privatbereich der Bauherrschaft liegt im unteren Stock. Ein langer Gang verbindet die Räume und bringt zahlreiche Einbauschränke unter, damit die Bauherrschaft den Platz in den Zimmern besser nutzen kann. Das Eltern- und das Kinderzimmer, ein Büro- und Gästezimmer sowie ein Fitness-Raum, der als zweites Gästezimmer dienen kann, verfügen alle über einen Zugang zum unteren Balkon. Ein Eltern- und ein Kinderbad, eine Ankleide, ein Technik- sowie ein Kellerraum fanden ebenfalls Platz im grossen Untergeschoss. Neben dem Fitness-Zimmer liegt zudem ein Haushaltsraum, in den eine grosszügige Holzsauna integriert wurde. Beim Saunieren blickt man durch ein geschickt platziertes Fenster gemütlich auf den See. Zur Abkühlung nach dem Wärmebad kann man über eine Aussentreppe zum Gartenbereich hinuntersteigen. Das Haus, das vorne auf Stelzen steht, bildet hier einen geschützten Aussenraum. Am liebsten hält sich die Bauherrschaft aber auf dem grossen Balkon im Erdgeschoss auf. «Ich freue mich jeden Tag aufs Neue, diese wunderbare Aussicht zu sehen», sagt der Bauherr.
Bauherrschaft und Architekt haben sich als ein gutes Team empfunden. «Wir hatten Vertrauen in Fausto Forni und haben ihm vielerorts freie Hand gelassen», sagt der Bauherr. «Dafür hat er auch unsere Wünsche respektiert.» Auch Fausto Forni hatte die Offenheit der Bauherrschaft geschätzt: «Ein Haus muss zur Lage und zu seinen Bewohnern passen», sagt er. «Jedes Haus hat seine eigene Geschichte.»
TECHNISCHE ANGABEN


[ ARCHITEKTUR ]
Fausto Forni | Forni e Gueli Architetti | Muralto | fornigueli.ch
[ KONSTRUKTION ]
Massivbau | Innendämmung | Flachdach | Fassade: Verputz
[ Raumangebot ]
Wohnfläche: 233 m² | Anzahl Zimmer: 6,5
[ Ausbau ]
Boden: Platten, Parkett | Wände: Verputz
[ Technik ]
Erdsonde | Sole-Wasser-Wärmepumpe | Zentralstaubsauger




















