Tagfalter
Ähnlich wie die Metamorphose von der Raupe zum Schmetterling machte auch dieses Haus während der Planung eine Entwicklung durch, bis es seine Form annahm und seine Schönheit entfalten konnte. Es passt deshalb gut, dass die Architekten diesem Baukörper Flügel verliehen haben – in Form eines Schmetterlingsdachs.

Nur wenige Autominuten von der Stadt Baden entfernt ruht dieser Baukörper wie ein Schmetterling mit leicht gespreizten Flügeln auf einem sanften Hügel. Er ist umgeben von Blüten und Bäumen und einem Gemüsegarten. Im Oktober letzten Jahres ist die junge Familie in ihr neues Zuhause planmässig eingezogen. Seither geniessen die Eltern mit ihren beiden Kindern die Vorzüge des Landlebens – die Nähe zum Wald, zu den Bauernhöfen, die familienfreundliche Nachbarschaft.
Natürliche Fügung
Der Bauherr Marco Prezioso ist selbst in der Baubranche tätig. Er arbeitet als Projektleiter für eine Agentur, die unter anderem 3-D-Visualisierungen für verschiedene Bauprojekte erstellt. Deshalb lag es nahe, dass er bei der Planung des Familienhauses seine Erfahrung nutzte und die Kreation digital begleitete. Der Wunsch vom Eigenheim war beim Bauherrn schon längere Zeit vorhanden. «Wir haben viele Häuser besichtigt. Bei jedem hätten wir Kompromisse eingehen müssen», erzählt er. Dank einer glücklichen Fügung war es nun möglich, ein eigenes Haus zu bauen. Freunde machten das interessierte Paar mit den Landverkäufern in Lengnau bekannt, die ihr Areal abparzellieren wollten – ein Grundstück am Dorfrand mit unverbaubarer Weitsicht auf das Kulturland. Um festzustellen, wie viele Quadratmeter für das Eigenheim nötig sind und ob es auf diesem Grundstück realisierbar ist, erstellte Marco Prezioso eine erste Machbarkeitsanalyse. Die Planung und die Realisation vertraute er dem Architekturbüro Bark Architekten an. Thorn Meister, ein befreundeter Architekt, und Martino Simoni waren verantwortlich für das Projekt. Sie nahmen die Grundidee eines kompakten und rechteckigen Körpers auf und entwickelten sie weiter. So verfeinerten sie auch das Raumkonzept mit Privaträumen im Erdgeschoss und gemeinschaftlichem Wohnbereich im Obergeschoss. Dabei berücksichtigten sie die vom Bauherrn angedachte Ausrichtung der Räume, die auf den Verlauf der Sonne abgestimmt ist, und die bestehenden Bäume, die in den Sommermonaten als natürliche Beschattung dienen.
Die Ausreifung der Idee
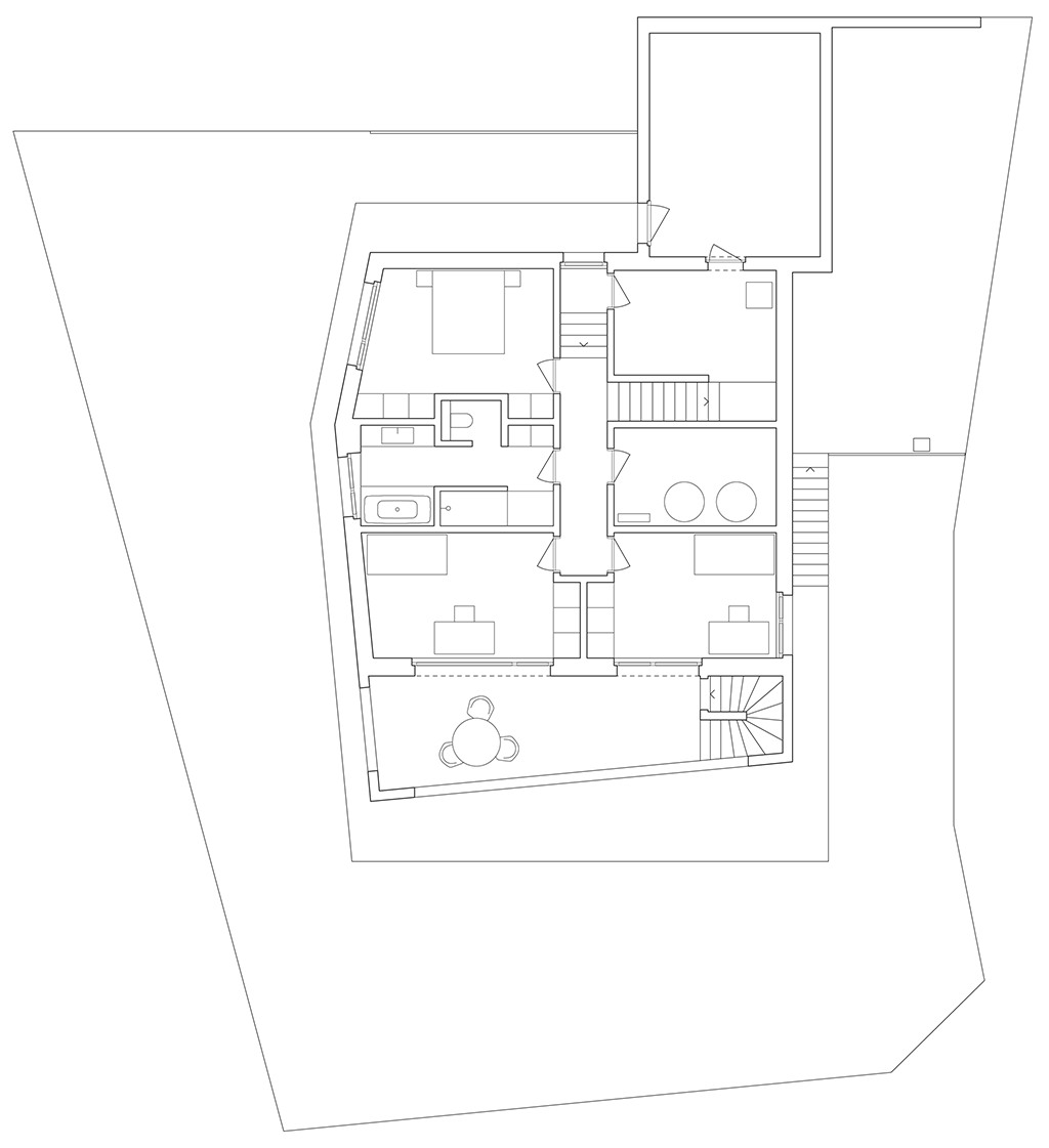
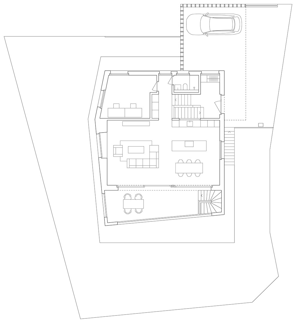
Das Grundstück hat eine leichte Hanglage. «Die Kosten für ein vollständig vergrabenes Untergeschoss in Zusammenhang mit der Sicherung der Böschung zur Strassenseite waren nicht zu unterschätzen. Das Raumprogramm konnten wir bereits auf zwei Etagen unterbringen. Deshalb gab es auch keinen Grund für ein Untergeschoss», erklärt der Architekt Martino Simoni. Der Verzicht auf das Untergeschoss sei jedoch immer projektbezogen zu beurteilen. Dem ursprünglichen Rechteck verliehen die Architekten eine fünfte Ecke: Der Körper erhält durch die Verformung der Westseite eine ästhetische Spannung und bietet im Hausinneren ein gemütliches Sitzfenster mit Blick auf die Birken und die Kronen des Magnolien- und des Kirschbaums. Noch mehr Dynamik erhält das Haus durch die ungewohnte Dachform. «Das Schmetterlingsdach interpretiert die umliegenden Satteldachhäuser neu», sagt Thorn Meister. Denn anstatt den höchsten Punkt des Dachs zentral anzusetzen, sind die peripheren Räume erhöht. «Diese Umkehrung erlaubt es dem Wohnbereich, sich nach Süden hin räumlich zu öffnen und den stimmungsvollen Ausblick ins Surbtal zu akzentuieren. Auf der Nordseite entstand Platz für ein Oberlichtband, welches das Büro und das Gäste-WC sowie die Korridore mit Tageslicht versorgt und zugleich vor Einblicken schützt.» Bewegt man sich im Obergeschoss, nimmt man die Räume deutlich grösser wahr, als die jeweiligen Flächen vermuten lassen. Zu diesem grosszügigen Raumgefühl trägt auch der Eingangsbereich als Splitlevel bei, das wie ein Gelenk mit wenigen Stufen das Obergeschoss mit dem auf der Gartenebene liegenden Erdgeschoss verbindet.
Perfektion – wie in der Natur so auch in der Architektur
Die Überhöhe der Räume und die Loggia sind Elemente, die das Ehepaar schon von seiner vorherigen Wohnung – ein Reihenhaus aus der Feder des berühmten Architekten Santiago Calatrava – kannte und nun, auf das eigene Haus abgestimmt, einfliessen liess. «Es war eine tolle Wohnung, aber man fühlte sich durch die grossflächige Verglasung ausgestellt», erzählt die Bauherrin Irene Prezioso. «Hier haben wir dieses Gefühl nicht, auch wenn wir viele und grosse Fenster haben.» Die eigene Erfahrung und das Fachwissen des Bauherrn haben die Projektentwicklung gefördert. «Durch meine Arbeit habe ich schon verschiedenste Projekte begleitet. Für unser Haus habe ich grossen Wert auf Details gelegt, deshalb habe ich es sehr geschätzt, dass das Architekturbüro die gleichen Werte teilt», sagt Marco Prezioso. «Wir haben beispielsweise in den Fensterrahmen des Schiebefensters zwischen Wohnbereich und Loggia die tragenden Stützen versteckt. Mir war es wichtig, dass die zur Verfügung stehenden Quadratmeter effizient genutzt werden, deshalb ist unser Schlafzimmer nicht unnötig gross. Die Fassade als homogene Einheit aus einem Guss war auch mein Wunsch. Dazu haben wir Metallplatten von Alucobond in bronzenem Farbton ausgesucht, die nicht genietet, sondern mit einem speziellen witterungsbeständigen Klebstoff befestigt sind», erklärt der Bauherr. Da die Architekten nebst der Projektentwicklung auch für das Baumanagement verantwortlich waren, konnten sie sämtliche Details bis zum Schluss kontrollieren und umsetzen. Die Zusammenarbeit mit den Bark Architekten empfand das Paar als vorbildlich. Es war von der Genauigkeit bezüglich der Planung und der Umsetzung sowie der guten Kommunikation beeindruckt. «Wir fühlten uns immer sehr gut aufgehoben und verstanden. Die Architekten sind auf unsere Ideen eingegangen und haben sie zu Ende gedacht. Sie haben mit dem vorhandenen Budget das Beste herausgeholt», lobt das Paar. An zukünftige Anpassungsmöglichkeiten wurde auch gedacht. So besteht die Möglichkeit, zu einem späteren Zeitpunkt Photovoltaikpaneele zu installieren und Elektroautos im Carport am Strom anzuschliessen.
«Das Haus ist auf uns und diesen Ort zugeschnitten. Es ist speziell, aber harmoniert mit der Umgebung», sagt Irene Prezioso. Von der anderen Seite des Dorfes wirkt es wie getarnt, da es von Bäumen umschmeichelt wird. Die besondere Architektur mit Schmetterlingsdach und goldig schimmerndem Kleid, das je nach Lichteinfall anders wirkt, erfreut nicht nur die Bewohner, sondern auch viele neugierige Betrachter, die das Haus bei einem Spaziergang im weitläufigen Surbtal entdecken. Vielleicht entpuppt sich ja schon bald ein kleiner Tagfalter im Garten – denn ein Baumhaus mit Alucobond-Fassade zwischen den Birken wäre ein weiteres Projekt, das dem Bauherrn gefallen würde.
TECHNISCHE ANGABEN



[ ARCHITEKTUR ]
Bark Architekten, Thorn Meister, Martino Simoni barkarchitekten.ch
[ KONSTRUKTION ]
Massivbauweise, Stahlbeton / Backstein mit hinterlüfteter Fassade aus Aluminium-Verbundplatten von Alucobond im Farbton C32 | Schmetterlingsdach
[ Raumangebot ]
Nettowohnfläche: 162 m² | Anzahl Zimmer: 5,5
[ Ausbau ]
Boden: Eichenparkett geölt | Wandbeläge: Abrieb | Decken: Sichtbeton gestrichen | Fenster: Holz-Metall
[ Technik ]
Sole-Wasser-Wärmepumpe (Erdsonde) | Bodenheizung























