Reduzierte Form schafft Stärke
Der Neubau im Südtirol spricht eine lineare und nüchterne Sprache, trotz der verspielten rebblätterförmigen Lichtlöcher. Mit seiner durchgehenden Glasfront schwebt das Haus halb über dem Boden und liegt teilweise wie ein Stein natürlich im grünen Garten.

Patrik Pedó, Architekt
Aussen weiss
Das Haus wurde so auf dem Grundstück ausgerichtet, dass die Glasfront nach Südwesten viel Licht ins Innere leitet. «Die Auskragung der Vordächer ist so berechnet, dass es im Sommer zu keiner Überhitzung im Haus kommt», sagt Pedó. Die Nordseite wurde mit wenigen Fenstern versehen und damit geschlossen gehalten, weil sich auf dieser Seite mehrere Nachbarhäuser befinden. Form und Ausrichtung ermöglichen die Unterteilung der Innenräume in einen Tag- und einen Nachtbereich. Aufgrund der L-Form ist die Schwimmfläche, die den Garten mit dem Gebäude verbindet, von jedem Zimmer aus sichtbar. Der Pool war ein unausweichlicher Wunsch der Bauherren. Aus ästhetischen Gründen entschieden sich die Planer für einen Infinity-Pool aus Sichtbeton, der innen sandgestrahlt ist. Durch seine Form nimmt auch der Schwimmbereich den Geländeverlauf natürlich auf. Die danebenliegende weisse Treppe ergiesst sich wie ein kleines Bergbächlein hinunter in den Rasen. «Wasser ist ein beruhigendes Element. Nachts beleuchtet, wird es zu einer wunderschönen Lichtquelle für das Haus», sagt Pedó. Die Hauswand im Westen ist mit ihren eingelassenen Löchern in Form von Rebblättern der verspielte Hingucker am Neubau. Die Löcher im Beton dienen als Lichtquellen und erhellen so den Hauseingang fleckenweise. Gleichzeitig bietet die Wand genügend Sichtschutz für den dahinterliegenden Wohnbereich. «Gegenüber liegt ein Hotel», begründet Pedó diesen architektonischen Schachzug. Dass bei der Materialisierung von Decken und Wänden auf Sichtbeton verzichtet wurde, hat logistische Gründe, wie der Architekt erklärt. «Die reduzierte Form ist die Stärke dieses Hauses.» Es liegt tatsächlich, wie ein Stein, der schon immer in diesem Garten lag, auf dem Grundstück.
INNEN WARM
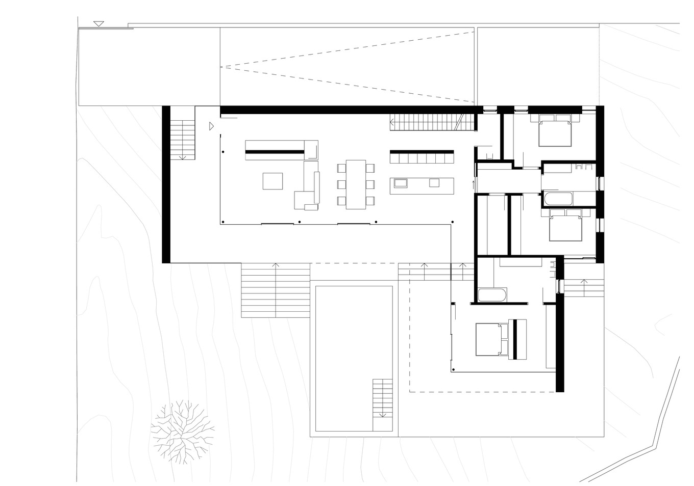
Die nüchterne und lineare Sprache des Aussenbereiches zieht sich bis ins Innere des Einfamilienhauses weiter. Doch durch den Einbau eines warmen Eichenholzfussbodens, die Wahl von grossen Dielen, haben die Köpfe hinter Monovolume Architecture+Design einen warmen und behaglichen, aber auch lichtdurchfluteten und mit dem Garten kommunizierenden Wohnraum für die Hausbewohner geschaffen. Für genügend Luft sorgen neben der kontrollierten Wohnraumlüftung die Glasschiebetüren, die sich komplett öffnen lassen. Dadurch wird der Aussenbereich des Hauses vom Wohnraum auf natürliche Weise integriert. Auch die Raumaufteilung des Massivbaus ist puristisch und geradlinig. Das Haus hat drei Schlafzimmer, wobei jenes der Eltern über ein eigenes Bad verfügt, während die beiden Kinderzimmer an ein gemeinsames Badezimmer angeschlossen sind. Die Wohnebene ist als grosser, durchgehender Raum gestaltet, der mit einem Multifunktionsschrank den Sofabereich vom Hausflur abtrennt. Neben dem mit der offenen Küche verbundenen Wohnzimmer gibt es lediglich noch einen kleinen Waschraum im Haus.
Patrik Pedó, Architekt
Was für die wohnliche Behaglichkeit im Inneren unabdingar war, waren ein durchdachtes Lichtkonzept und die Ausstattung mit Mobiliar, das für wohligen Komfort sorgt. Dafür hat der Architekt einen Lichtplaner an Bord geholt. Bei den Lichtspendern im Essbereich handelt es sich um handgeblasene Glaslampen aus New York. Beim Hauseingang, der durch einen langen Flur mit dem Wohnbereich verbunden ist, setzte der Lichtexperte auf indirekte Beleuchtung. Aus diesem Grund sind die Leuchten gegen die Wand gerichtet, sodass diese als eigentliche Lichtquelle wirkt. «Dieser Bereich wird in Zukunft auch als Kunstgalerie verwendet», weiss Pedó. Die hinter dem Spiegel im Badezimmer angebrachte Lichtquelle lässt das runde Glas wie einen leuchtenden und in der Luft schwebenden Mond wirken. Das macht den schlichten Raum leicht und freundlich.
Wohnlichkeit schaffen Architekten und Raumplaner mit einer entsprechenden Materialwahl beim Mobiliar. So wurden Akzente in warmen graumelierten Stoffen beim Sofa gesetzt. Als erhellende Kontraste wirken die weisse Küche und die weissen Schalenstühle. Als verbindendes Element aus hellem Eichenholz verfehlen Esstisch, Stühle und die Betten ihre behagliche Wirkung nicht.
ZUM WOHLFÜHLEN
Die schlichte Einfachheit des Hauses ist ein gesamtheitliches Konzept, welches sich bei der Energieversorgung finalisiert. Neben Wärmedämmung und schattenspendenen Vordächern sowie der Innenraumlüftung verfügt das Haus über ein auf einer Gastherme basierendes Niedertemperatursystem. Mittels Fussbodenheizung sorgt dieses für behaglichen Wohnkomfort. Gemäss Auflagen im Südtirol erreicht damit das «Haus T» die Klasse B der Klimakategorien. Obwohl gemäss der erreichten Klimanorm grösser hätte gebaut werden dürfen, entschied sich der Bauherr gegen den gesetzlichen Bonus. Dies aus einem einfachen Grund: «Der Bauherr braucht nichts Grosses zum Leben», sagt Pedó. Die Wohnfläche macht knapp etwas über einen Viertel der gesamten Grundstücksfläche aus, welche über 1300 Quadratmeter misst. Energetisch durchdacht ist der Neubau aber trotzdem. Für den Fall, dass die Hausbesitzer in Zukunft auf alternative Energiequellen wie eine Photovoltaikanlage oder eine Wärmepumpe umsteigen möchten, hat der Architekt bereits beim Bau die entsprechenden Vorrichtungen anbringen lassen. Damit stünde dem allfälligen Umrüsten nichts im Weg, wie Pedó sagt: «Wir haben für alle Fälle vorgesorgt.»
TECHNISCHE ANGABEN

[ ARCHITEKTUR ]
Monovolume Architecture+Design Patrik Pedó, Jury Anton Pobitzer | Bozen, Italien | monovolume.cc
[ KONSTRUKTION ]
Massivbau | Flachdach | Fassade: Stahlbeton mit Vollwärmeschutz
[ Raumangebot ]
Nettowohnfläche: 315 m² | Anzahl Zimmer: 5,5
[ Ausbau ]
Boden: Eiche, gebürstet und geölt, grossformatige Fliesen in den Bädern | Fenster: Dreifach-Isolierverglasung mit Holzrahmen innen, aussen Stufenglas
[ Technik ]
Gastherme | Fussbodenheizung | Wohnraumlüftung | Cheminée






















