Nur ein Katzensprung zum See
Schon lange träumte diese junge Familie vom eigenen Haus, in welchem auch die TCM-Praxis Platz haben sollte. In Giswil am Sarnersee hat das Paar das geeignete Grundstück gefunden und sein Eigenheim in Zusammenarbeit mit Atmoshaus realisiert.

l
Wohnen mit Seesicht
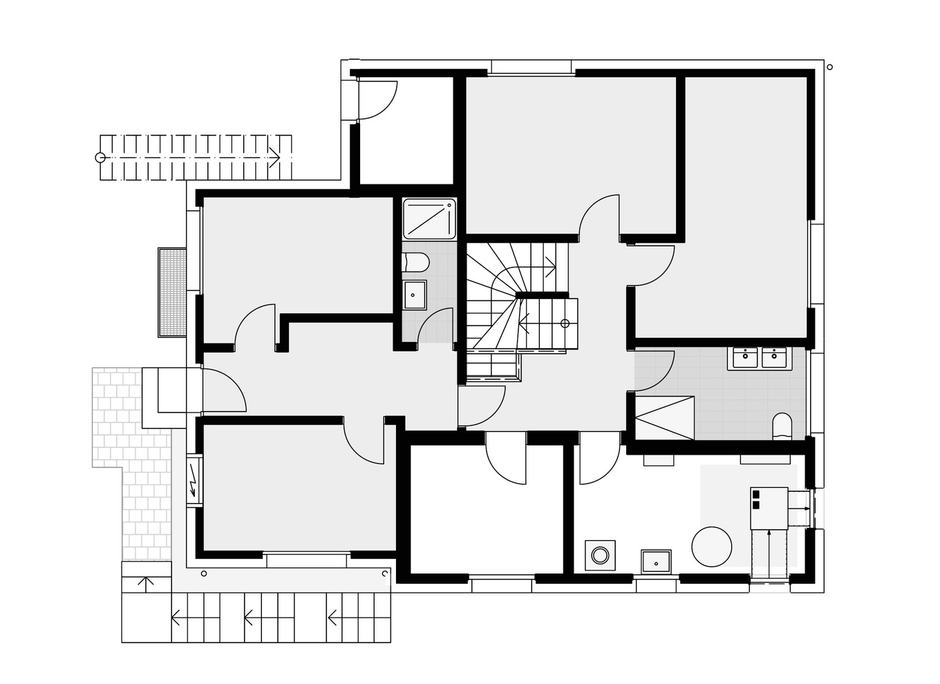
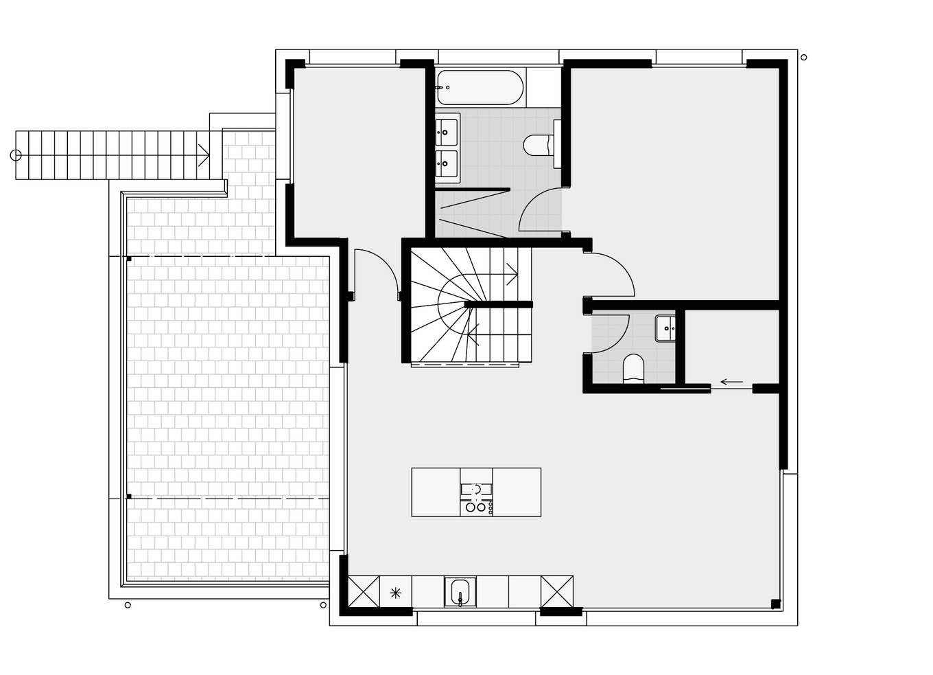
Das Wohngeschoss mit Küche, Essbereich und Terrasse, von der eine Aussentreppe zum Garten führt, liegt auf der dritten Etage. Das Elternzimmer mit Masterbad, das Gäste-WC und das Zimmer der Tochter runden die Raumanordnung auf dieser Ebene ab. Ein rustikaler Parkettboden zieht sich durch die Küche und die restlichen Wohnräume und schafft ein behagliches Ambiente, während die gestrichene Wand beim Esszimmer einen farbigen Akzent setzt. Von hier aus geniesst die Familie mit ihren Gästen eine schöne Aussicht auf den See und die umliegende Natur. Die Fenster hat der Bauherr in seinen Entwürfen gezielt platziert, sodass man im Raum einen schönen Rundumblick hat, ohne Einblicke zu gewähren. Noch schöner ist der Ausblick im Attikageschoss, wo das Wohnzimmer mit Cheminée und einem von der Decke herunterklappbaren TV-Gerät angesiedelt ist. Raumhohe Fenstertüren erweitern das Wohnzimmer nach draussen auf die grosse, fast ganz umlaufende Terrasse. Auf der zweiten Etage bzw. im Erdgeschoss sind zwei grosse Zimmer und ein grosses Bad mit begehbarer Dusche sowie zwei Nebenräume angesiedelt. «Im Moment nutzen wir diese zwei Zimmer als Gästezimmer und Büro. Unsere Tochter schläft noch im kleinen Zimmer oben neben der Küche, das als Büro angedacht ist», erklärt der Bauherr das Raumkonzept.
der Bauherr
Raum für Flexibilität
Die TCM-Praxis ist nur durch eine Tür von den Privaträumen getrennt. «Zuerst war die Idee, einen Innenhof mit der Praxis und dem Haupthaus zu bilden, doch aufgrund der Bauvorschriften bezüglich Abstand war das leider nicht möglich», berichtet der Bauherr. Nichtsdestotrotz sind er und seine Frau glücklich, dass die TCM-Praxis im Haus integriert ist. Sie wurde so geplant, dass sie später zusammen mit dem Erdgeschoss zu einer eigenständigen Wohnung ausgebaut werden könnte. Entsprechende Leitungen für Strom und Wasser für eine Küche wurden vorbereitet, und auch die Leichtbauwände können entfernt werden, um den Grundriss zu verändern. So besteht die Möglichkeit, dass später die oberen zwei Stockwerke von den Bauherren beansprucht werden, während die Wohnung unten vermietet werden könnte.
die Bauherrin
Die Planungs- und Bauphase behält das Paar in guter Erinnerung, wurde doch alles zur vollsten Zufriedenheit und termingerecht durch den Generalunternehmer realisiert. «Ich fand es toll, dass ich die Grundrisspläne selbst zeichnen konnte und diese auch genau meinen Vorstellungen entsprechend von Atmoshaus umgesetzt wurden», sagt der Bauherr. Es sei eine strenge Zeit gewesen, zumal viele Entscheidungen getroffen werden mussten. Auch mit den Handwerkern war das Paar zufrieden, es schätzte ihre Pünktlichkeit und ihre sorgfältige Arbeit. «Wir geniessen unser Haus, die Ruhe hier im Quartier und die Nähe zum See und zu den Bergen. Noch dazu ist es gar nicht weit, wenn wir einmal in die Stadt fahren wollen», schwärmt die Bauherrin, und man sieht ihr die Freude an, als sie auf der Terrasse steht und ihr Blick zufrieden in die Ferne schweift.
TECHNISCHE ANGABEN


[ ARCHITEKTUR ]
Atmoshaus AG | Sempach Station | atmoshaus.ch
[ KONSTRUKTION ]
Massivbau | Flachdach | Wände: Beton, Kalksandstein, Backstein, mit Wärmedämmung | Fassade: Abrieb
[ Raumangebot ]
Nettowohnfläche: 194,9 m² | Anzahl Zimmer: 8,5
[ Ausbau ]
Wandbeläge: Abrieb, Platten, Beton roh, Kalksandstein roh | Boden: Zementüberzug, Platten, Eichenparkett, Laminat, Beton roh | Fenster: Kunststoff, dreifach verglast
[ Technik ]
Luft-Wasser-Wärmepumpe | Cheminée





















