Mit der Natur verbunden leben
In ihrem modernen Holzhaus leben Kati Hienonen und Ari Virtanen im Einklang mit der Natur, fernab vom hektischen Berufsalltag. Die schlichte Architektur überlässt die Hauptrolle der umliegenden Landschaft mit ihren Seen und Wäldern.

Altes Haus – neu gebaut
Ihre Verbundenheit zum Haus am See trägt die Bauherrin schon seit der Kindheit in sich: In den 70er-Jahren bauten ihre Eltern an derselben Stelle eine Sommerhütte, die sich schon damals durch ihre moderne Architektur auszeichnete. Hier verbrachte Kati ihre Sommerferien und genoss das einfache Leben in der Natur sowie die weissen Sommernächte. Jahre später wurde das Haus durch Marder, die unter dem Dach hausten, schwer beschädigt und stand eine Weile leer – bis sich Kati und ihr Ehemann Ari Virtanen dazu entschieden, es für sich und ihre erwachsenen Kinder neu zu bauen. Das neue Haus sollte dem Grundriss und der Architektur des alten weitgehend folgen, aber das ganze Jahr lang bewohnbar sein – ein zweites Zuhause. Die Bauherrin beauftragte die renommierte finnische Architekturfirma Sigge damit, einen Bau nach ihren Vorstellungen zu gestalten: Im Einklang mit der Natur, mit viel Holz und wie die alte Hütte mit einem Wohnzimmer, das etwas tiefer liegt als der Rest des einstöckigen Hauses.
Das Haus steht auf einem kleinen Hügel, von dem aus sich der Blick nach Süden auf den See öffnet, dessen Wasser so klar und sauber ist, dass man es trinken kann. Nach Norden erstreckt sich der Wald, in dem das Holzhaus so harmonisch eingebettet ist, dass es vom See aus kaum noch zu erkennen ist. «Dieser Ort bringt viele Kindheitserinnerungen mit sich», sagt Kati Hienonen. «Sobald ich hier ankomme, ziehe ich meine Schuhe aus, um die Erde, das Moos und die Felsen am Seeufer unter den Füssen zu spüren.» Hier schöpft sie auch die Inspiration für ihr Textil-Label Bondenliving, das alte finnische Handwerkstradition mit natürlichen Pigmenten, regionalen Materialien und einer naturverbundenen Haptik vereint.
Holz und Glas
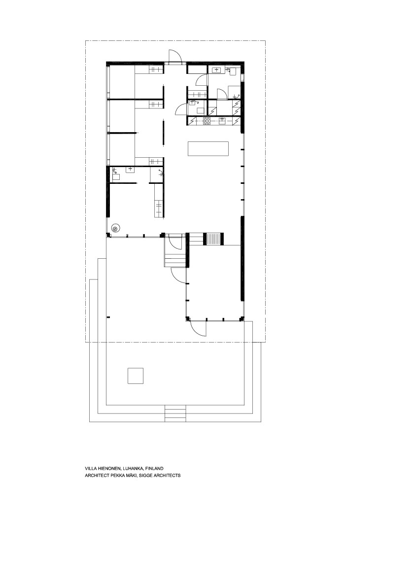
Diese Naturverbundenheit zeigt sich auch im Inneren des Holzhauses. Das Ehepaar wählte hochwertige, zeitlose Materialien. Insbesondere das Fichtenholz, aus dem das Haus konstruiert wurde, spielt eine prominente Rolle: Das sichtbare Dachgebälk spiegelt sich in den 40 Zentimeter breiten, hell lasierten Fichtendielen wider, die sich über den Boden ziehen. Bis auf die Lasur ist das regionale Holz unbehandelt und behält seine natürliche Textur. Auch die Wände des Hauses wurden in Holz getäfert – zumindest dort, wo sie nicht von raumhohen Fenstern eingenommen werden, die einen fast nahtlosen Übergang zur Natur schaffen. Die restliche Einrichtung wurde nach skandinavischer Art schlicht und minimalistisch gehalten, um nicht vom Schauspiel der Umgebung abzulenken. «Die Landschaft ist das Beste am Haus; wir brauchen hier keinen Fernseher», sagt Ari. Insbesondere im Wohnzimmer, das ein paar Treppenstufen tiefer als die restlichen Räume liegt, kommt die Aussicht voll zur Geltung. Ein mit Stein verkleidetes Cheminée trennt es optisch vom Essbereich und der Küche, die als einziges Element in schlichtem Weiss gehalten ist. Der Kücheninsel verdankt die Küche die skandinavische Bezeichnung «samtalekøkken», wörtlich übersetzt «Gesprächsküche», in der man sich beim Kochen mit der Familie und Gästen unterhalten kann.
Wohnzimmer, Esszimmer und Küche bilden einen lang gezogenen offenen Raum entlang einer Seite des Hauses. An der gegenüberliegenden Seite befinden sich die Schlafzimmer der Bewohner. Das Elternzimmer verfügt über eine Ankleide und ein Badezimmer en suite, das mit weissem Naturstein aus Lappland ausgekleidet wurde. Zwei weitere Schlafzimmer und ein Badezimmer liegen im hinteren Teil des Hauses. Dort verbirgt sich auch der Technikraum, der notwendig ist, um das Haus das ganze Jahr lang bewohnbar zu machen: Eine Wärmepumpe nutzt umweltfreundliche Erdwärme zum Heizen, und Solar-Paneele bereiten das Warmwasser auf. So kann die Familie ihr Ferienhaus zu jeder Jahreszeit geniessen – von innen und von aussen, denn rund um das Haus zieht sich ein Holzdeck, das durch das überhängende Dach vor der Witterung geschützt ist. Das Deck folgt dem Verlauf des Grundstücks. An der Vorderseite des Hauses befindet sich ein grosser Sitzbereich, von dem aus breite Holzstufen zum See hinabführen. Bei trockenem Wetter dienen die Stufen als Sitzgelegenheiten, Liegeflächen oder als Tische für Picknicks oder Katis kreative Arbeit.
Sauna mit Geschichte
Das alte Sommerhaus von Katis Eltern wurde durch das neue Gebäude komplett ersetzt. Ein anderer Bau auf dem Grundstück blieb aber unverändert: Die traditionelle finnische Rauch-Sauna, die jeden Tag und zu jeder Jahreszeit zum Einsatz kommt. Das Beheizen der Sauna ist ein Ritual, das bereits am Morgen beginnt, wenn man am Nachmittag saunieren möchte. Das Befeuern einer Rauchsauna ist nicht einfach. Bei geschlossenen Türen wird das Feuer im steinernen Ofen stundenlang geschürt, bis sich die Sauna mit Rauch füllt und aufwärmt. Dann wird sie gelüftet und ist bereit für den Sauna-Gang, wonach sich die Hienonens mit einem traditionellen Sprung in den See abkühlen – auch im Winter, notfalls durch ein Eisloch. Als erfahrener Einheizer oder «saunamajuri» bereitet Ari nicht nur die Sauna vor, sondern beherrscht es auch, Besen aus Birkenzweigen für die Sauna zu binden – eine Kunst, die er noch von Vater und Grossvater gelernt hat. «Es ist aufwendig und braucht Geduld», sagt Ari, «aber hier finde ich die Zeit für diese meditative Beschäftigung.» Auch Kati erholt sich im Ferienhaus in vollen Zügen. «Das Leben hier ist einfach, was sich auch in der schlichten Architektur des Hauses widerspiegelt», sagt sie. «Hier leben wir in Symbiose mit der Umgebung.» Und Ari ergänzt: «Sie ist wie eine Vorratskammer der Natur: Wir fangen Flusskrebse im See, finden Pilze im Wald und sammeln Brombeeren, die direkt vor unserer Haustür wachsen.»
[IMAGE id=“22634″]









Architekten-Interview
Pekka Mäki, welche Ansprüche hatte die Bauherrschaft an ihr neues Haus ?
Der Hauptwunsch der Bauherrin war, so viel Holz wie möglich zu verwenden. Einer der wichtigsten Punkte war dabei, die Holzkonstruktion modular zu gestalten. Bis auf die Dachform und die Raumaufteilung ähnelt das Haus dem alten Bestandsgebäude, das schon vorher auf dem Grundstück stand.
Wie sind Sie die Architektur dieses Hauses angegangen ?
Das Haus steht auf einem Hügel, von dem aus man eine schöne Aussicht auf den See hat. Deshalb haben wir es so gestaltet, dass man einen direkten Blick zum See hat, sobald man das Haus betritt. Die Innenräume sind lichtdurchflutet, und alle sichtbaren Oberflächen bestehen aus Holz. Eine Herausforderung war, den Bau so in der umliegenden Natur zu verstecken, dass er vom See aus nicht sichtbar ist.
Haben Sie sich auch um die Innenarchitektur gekümmert ?
Die Holzkonstruktion ist ein sichtbares, prominentes Element im Hausinneren und verleiht ihm eine angenehme Atmosphäre. Die sichtbaren Holzoberflächen wurden hell lasiert. Ansonsten hat die Kundin die Inneneinrichtung nach ihren eigenen Vorstellungen ausgestaltet.
Inwiefern unterscheidet sich dieses Haus von anderen Projekten Ihres Architekturbüros ?
Normalerweise bauen wir eher grössere Projekte. Wir machen allerdings auch viele kleinere Bauten wie Einfamilienhäuser, Sommerhütten und Saunen.
Skandinavien, insbesondere Finnland, ist für seinen grossen Einfluss auf die Design- und Architektur-Welt bekannt. Wie unterscheidet sich finnische Architektur von der Architektur im restlichen Europa ?
Unser geschichtliches Erbe verbindet uns Finnen sehr stark mit der Natur. So ist die vielseitige Verwendung von Holz ein wichtiger Unterschied zwischen der finnischen und der europäischen Architektur. Aber auch die finnische Sauna-Kultur unterscheidet uns vom Rest der Welt. [IMAGE id=“22645″]

TECHNISCHE ANGABEN
[ ARCHITEKTUR ]
Sigge Architects, Turku, Finnland | Pekka Mäki | sigge.fi
Interior Design: Kati Hienonen & Ari Virtanen, Bondenliving | bonden.fi
Styling: Martina Hungliger madsmogensen.com
[ KONSTRUKTION ]
Holzbau | Walmdach | Fassade: Holzschalung
[ Raumangebot ]
Nettowohnfläche: 135,5 m² | Anzahl Zimmer: 4,5
[ Ausbau ]
Boden: Parkett, Naturstein | Wände: Holz, Naturstein, Verputz | Decke: Holz | Holzfenster doppelt verglast
[ Technik ]
Sole-Wasser-Wärmepumpe | Fussbodenheizung | Solarpaneele | Cheminée














