Im Schutz des Flügels
Stahl, Glas und weisser Travertin sorgen für ein exotisches Äusseres. Amerikanisches Nussbaumholz, skulpturale Leuchten sowie italienisches Design prägen die mediterrane Innenarchitektur dieser Villa im Herzen der Schweiz.

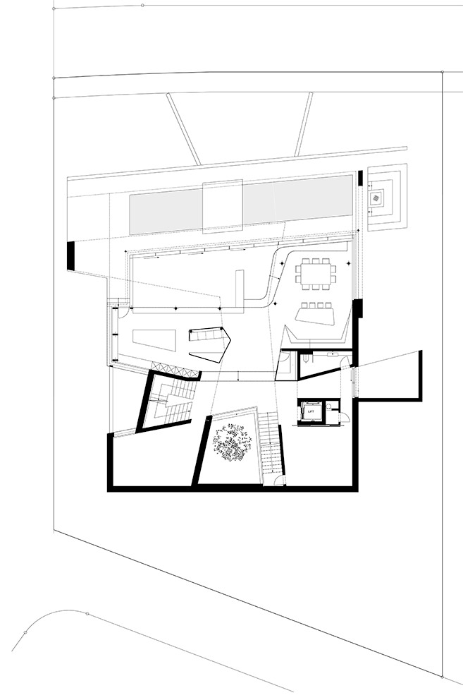
Olivenbaum statt Wasserfall
Für höchste Qualität und Dienstleistung am Kunden ist SAOTA weitherum bekannt. Getreu dem Motto: «Kein Wunsch bleibt unerfüllt.» Und gern darf es auch einmal etwas mehr sein: beispielsweise ein durchs Haus fliessender Wasserfall. «Das war uns dann doch etwas zu viel des Guten», sagt der Bauherr. Dort, wo der Wasserkanal vom Ober- zum Untergeschoss hätte führen sollen, um den hangabfallenden Verlauf der Architektur zu symbolisieren, befindet sich nun ein Atrium. Der grosszügig konzipierte Glaskasten, an dem linksseitig die schwebende Treppe vom Eingangsbereich zur Wohnebene hinunterführt, enthält ein in sich geschlossener Mikrokosmos, bestehend aus einem circa 500-jährigen Olivenbaum. «Von Wind geschützt, von oben besonnt oder mit Regen sowie Schnee versorgt, fühlt sich der Baum aus den Pyrenäen sichtlich wohl», sagt die Bauherrin. Es sind klimatische Bedingungen, die der Baum schon aus seinem Herkunftsgebiet kennt. «Da er unsere spanischen Wurzeln und unseren Bezug zur Schweiz vereint, passt er wunderbar ins Herz unseres Daheims», sagt die Bauherrin weiter.
Viel Glas sowie türenlose Übergänge zwischen den Räumen untermalen die aussergewöhnliche Architektur der Villa im Kanton Schwyz. So führen vom komplett verglasten Eingangsbereich im Obergeschoss zwei Brücken in zwei der vier Wohnkuben. Linksseitig befindet sich ein grosszügiges Gästezimmer mit Bad und Dusche. Von dort aus geht es weiter zur Büronische des Ehepaars, die über einen Gang mit dem rechts liegenden Kubus verbunden ist. Die Ankleide geht in das offene Badezimmer über, das mit zwei Schiebetüren vom Masterschlafzimmer getrennt ist. Von jedem Wohnquader aus führt jeweils eine Treppe ins Untergeschoss. Jene vom Eingangsbereich schwebt entlang des Atriums in den offenen Wohnbereich hinein, der Küche, Sofalandschaft, Bar und Essbereich beheimatet. Zwei davon wegführende Nischen beherbergen, etwas privater gestaltet, eine Sofaecke und ein Heimkino. Im Erdgeschoss offenbart sich dem Eintretenden ein sich über die gesamte Gebäudebreite erstreckender Wohnbereich. Während Küche und Essbereich mit Barecke auf der gleichen Ebene liegen, ist die Lounge zwei Stufen nach unten – auf die gleiche Höhe wie der Outdoor-Bereich – versetzt, von wo aus man einen wunderbaren Blick auf den Zürichsee geniessen kann. Bei geöffneter Glasfront vergrössert sich der Wohnbereich schwellenlos um die mit ebenfalls weissem Travertin ausgekleidete Terrasse mit Infinity-Pool, Lounge und Essbereich. Getreu dem südländischen Stil führt vom Esstisch im Halbschatten eine kleine, mit einem Outdoor-Vorhang dekorierte Glastür in die grosszügige Küche. Blickfang ist neben der Küchenzeile aus Nussbaumholz die polygonale Kochinsel aus weissem Mineralwerkstoff. Die Seele der Küche entpuppt sich als kleines Raumwunder. Neben Stauraum, einem Barelement, Spüle und Induktionskochherd birgt sie auch einen Holzkohlegrill. Kühlschrank, Schränke für Gläser und Geschirr, Backofen und Steamer sind beinahe unbemerkt in der Küchenzeile hinter der Insel eingelassen. Ein diamantförmiger Holzkubus – auf den ersten Blick mehr Kunstobjekt als Möbel – gibt bei geöffneter Schiebetür zusätzliche Arbeitsfläche, eine weitere Spüle und einen Geschirrspüler sowie einen Fleischtrockner preis.
Design, das Geschichten erzählt
Das Interior-Design aus mehrheitlich italienischer Hand rundet das weitläufige Raumerlebnis durch ein lieblich gestaltetes Ambiente ab. Um die Inneneinrichtung kümmert sich das designaffine Ehepaar selbst. «Zum einen, weil es uns unglaublich viel Spass bereitet, Möbel und Textilien auszusuchen», sagt die Bauherrin. «Zum anderen, weil wir uns beim Gestalten unseres Nestes auch Zeit lassen wollten und deshalb Raum für Raum vorgegangen sind», ergänzt der Ehemann. So können die Hausbesitzer zu jeder Wandtapete, jedem Möbelstück und jeder skulpturalen Leuchte sowie jedem Kunstwerk im Haus eine eigene Geschichte erzählen. Lediglich das Master-Schlafzimmer, das sich neben der offenen Ankleide und dem als Open Space gestalteten Badezimmer befindet, wie auch den Gästebereich, der ebenfalls im oberen Stockwerk neben der Büronische des Ehepaars liegt, haben die Hausbesitzer von Martinuzzi Interiors gestalten lassen. Im Untergeschoss des Hauses befindet sich die grosszügige Garage des Ehepaars, der mit viel Liebe eingerichtete und beleuchtete Weinkeller sowie der Fitness- und Wellnessbereich der Villa.
Der Bauherr
Trotz der Weitläufigkeit der Liegenschaft, die durch die fliessenden Raumübergänge, das durchgehende Lichtkonzept, basierend auf viel Bodenlicht, sowie dem dominanten Einsatz von Glas die SAOTA-Wesenszüge unterstreichen, vermittelt die südafrikanische Architektur Geborgenheit. Den Kokoncharakter haben die Besitzer mit ihrer Designaffinität und Stilsicherheit massgeblich geprägt. Obwohl die Planungszeit und die Bauzeit zeitintensiv und anspruchsvoll waren, sagt der Bauherr: «Mit SAOTA und Property One zusammen würden wir das Abenteuer sofort wieder anpacken.»
[IMAGE id=“36803″]















Architekten-Interview

Phillippe Fouché, welche Erfahrungen haben Sie mit dem Bau der Villa im Kanton Schwyz gemacht?
Die Arbeit in einer neuen Region bietet spannende Möglichkeiten. Ich erinnere mich, wie ich an einem kalten Dezembermorgen im Jahr 2012 mit dem Kunden vor Ort durch frischen Schnee ging, was für einen Architekten aus Kapstadt ziemlich ungewöhnlich ist. Das Klima ist eine der ersten Überlegungen, zusammen mit dem Verständnis und der Interpretation der lokalen Zonierung und den rechtlichen Bedingungen. Der natürliche Kontext und die Reaktion auf die Landschaft beeinflussten den Entwurf.
Wie nehmen Sie die Schweiz und ihr Verhältnis zur Architektur wahr?
Unserer Erfahrung nach ist die Schweiz recht zukunftsorientiert, und es gibt eine echte Wertschätzung für die Architektur als Kunstform. Aufgrund von volumetrischen Beschränkungen und wirksamer Heizung haben nicht viele Häuser in der Schweiz ein hohes Volumen. Wir hatten Glück, dass unsere Kunden offen waren für die räumlichen Qualitäten und das Licht, die wir in unseren Projekten oft verwenden. Das Volumen ist sorgfältig choreografiert; das Dach schaukelt sich vom natürlichen Bodenniveau auf, um einen grossen, lichtdurchfluteten Eingang zu schaffen, von dem aus man sich durch einen engeren Raum um das Atrium herum bewegt, wo sich dann der dramatische Blick über den See auf die Alpen öffnet.
Was waren die grössten Herausforderungen bei diesem speziellen Hausprojekt?
Das Haus sollte in erster Linie vom Ehepaar genutzt werden, muss aber von Zeit zu Zeit auch grössere Gruppen von Gästen aufnehmen. Die Herausforderung bei diesen Räumen besteht darin, dass sie sich wohlfühlen müssen, wenn sie sich unterhalten, aber auch gemütlich und kokonierend, wenn nur das Paar im Haus ist.
Worauf sind Sie besonders stolz?
Wir sind von der Lichtqualität im Haus begeistert. Obwohl wir umfangreiche Sonnenstudien durchführen, ist es spannend zu sehen, wie das natürliche Licht auch in die unteren Bereiche des Hauses fällt, die auf künstliche Beleuchtung angewiesen sind. Wenn man sich in den Hauptwohnräumen aufhält, ist die sich ständig verändernde Aussicht wunderschön eingerahmt und wird zum viszeralen Teil des Alltagslebens.
TECHNISCHE ANGABEN


[ ARCHITEKTUR ]
Phillippe Fouché, SAOTA, saota.com | Bauführung und Local Office: Property One, propertyone.ch
[ KONSTRUKTION ]
Stahlbau | Flachdach, Metallkonstruktion mit Alucobondplatten | Fassade: weisser, offenporiger Travertin
[ Raumangebot ]
Nettowohnfläche: 484 m² | Anzahl Zimmer: 6 (plus Wellness, Weinkeller, Heimkino)
[ Ausbau ]
Boden: weisser, offenporiger Travertin, Teppich | Wand: weisser, offenporiger Travertin | Fenster: rahmenlose Pfosten-Riegel-Konstruktion
[ Technik ]
Erdsonden-Wärmepumpe | Photovoltaikanlage | kontrollierte Lüftung | Gebäudeautomationssystem






















