Im Höhenzug des Kettenjuras
Ein Haus, das den aktuellen Bedürfnissen entspricht, wünschte sich das Ehepaar für sich und die Kinder. Der Lösungsweg führte in den Jurapark Aargau und zum Architekten Danny Wanner, dem es gelang, aus einer vagen Idee ein Familienhaus zu schaffen, in dem sich alle sofort zu Hause fühlten.

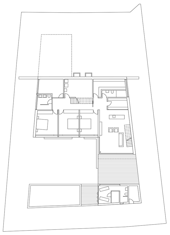
Der Begriff Jura kommt aus dem Keltischen und bedeutet Waldland. Tatsächlich fühlt man sich in einem Waldland angekommen, wenn man sich in Küttigen umsieht. Die Gemeinde liegt in einer leichten Mulde zwischen dem Jura-Südhang und der Aare. Der Weitblick reicht bis zu den Alpen, wo man sogar die Spitzen von Eiger, Mönch und Jungfrau erkennen kann. In diese idyllische Landschaft bettet sich dieser Neubau auf einem Grundstück mit leichter Hanglage und reiht sich als letztes Haus in eine Siedlungsstrasse ein, die von Einfamilienhäusern mit Satteldächern geprägt ist – als einzige Ausnahme mit Flachdach. Hinter dem Eingangstor sieht man den Baukörper kaum und blickt direkt auf Baumkronen. Öffnet sich das Tor, nimmt man das Haus als eingeschossigen Baukörper wahr.Eingangstor, Garage und der Hauseingang im Erdgeschoss formen einen grosszügigen und rudimentären Vorplatz als Spielfläche oder als Raum für Apéros. Dieser Aussenraum bildet das nüchterne Gegenstück zum schlichten, aber eleganten Garten im Untergeschoss, der von hohen Gräsern, einem Saunahaus und dem Wohnbereich mit Cheminée gesäumt wird. Mit dem Pool und der grossen Spielwiese wird dieser Teil des Hauses zu einem Anziehungspunkt für Bewohner, Freunde und Gäste.
Offene Räume mit fliessenden Übergängen
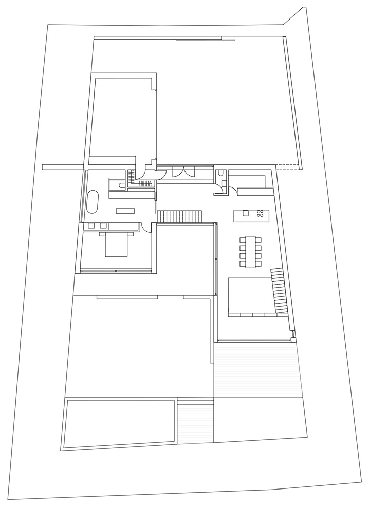
Das Haus besteht aus zwei Flügeln, die jeweils den Wohnbereich und den Privatbereich auf zwei Stockwerken verteilen. Entree und Terrasse trennen die Bereiche im Erdgeschoss und stellen gleichzeitig einen fliessenden Übergang von der Küche zum Elternzimmer dar. So reicht der Blick von der Kochinsel bis zur Fensterfront im Masterbad. Die Materialien erzeugen ebenfalls eine nahtlose Verbindung zwischen den unterschiedlichen Räumen: helle Plattenböden und dunkle, strukturierte Kunstharzfronten in Holzoptik, welche die Badmöbel, die Ankleide und die Küche kennzeichnen. Der Elternbereich lässt sich mit einer Schiebetür abtrennen. Diese verschmilzt mit dem Entree zu einer Fläche, die aussen in der Terrasse und der Garage ihre Verlängerung findet. Auf diese Weise wird der Westflügel als Kubus deutlich.
Mosaikplättchen in schimmernden Bronzetönen tauchen das Elternbad in ein warmes Licht. Die Möbel in dunkler Holzoptik tragen ebenfalls zum gemütlichen Ambiente bei. «Das Besondere hier ist die grosse Fensterfront. Sie ist wie ein Bild. Manchmal kann man sogar Rehe beobachten, die vom Wald bis hinunter auf die Kuhweide kommen», erzählt der Bauherr Daniel Schibler. Eine weitere Besonderheit ist der Wandspiegel. Der Raum wirkt dadurch optisch grösser. «Die Badezimmer mit allen Details hat unser Architekt geplant», erklärt der Bauherr, während er zur Küche führt, die ebenfalls vom Architekten Danny Wanner von Wannerpartner Architekten konzeptioniert und vom Schreiner ausgeführt wurde. «Wir wünschten uns eine wohnliche Küche», sagt der Hausbesitzer, «zuerst wollten wir den Backofen und den Kombi-Steamer hinter Schiebetüren verstecken. Doch dann entdeckten wir die grifflosen Geräte von V-Zug.» Nebst Schränken und Schubladen verbirgt sich hinter einer Tür ein Reduit. Seitlich vom Küchenkubus und zum Entree hin ist das Gäste-WC ausgerichtet. In der Küche kam auch der Trick mit dem Spiegel zur Anwendung: Der Sockel der Kochinsel ist mit Spiegeln umfasst, die den Bodenbelag scheinbar erweitern. So wirkt die Insel schwebend und leicht.
Daniel Schibler, Bauherr
Statt eines offenen Raums weiss der Bauherr den Wohnbereich lieber von der Küche getrennt: «Die Lösung mit der Galerie hat uns sehr gut gefallen. So kann man über die Ebenen akustisch miteinander kommunizieren.» Neben dem Esstisch führt eine Treppe ins Untergeschoss. Hier sorgt das hängende Cheminée für grosse Gemütlichkeit. «Wir benutzen es regelmässig», sagt der Familienvater. Da es sich nach Belieben drehen lasse, könne man auch von der Gartensauna aus auf das knisternde Feuer schauen. Dass der Architekt die Wünsche und Bedürfnisse der Bauherrschaft verstanden hat, bewies er mit einer kleinen Überraschung im Wohnzimmer. «Über den Weinkeller habe ich mich sehr gefreut», sagt der Hausbesitzer mit strahlenden Augen. Praktischerweise gibt es hier im Wohnzimmer eine Bar mit Waschbecken, wo man die edlen Tropfen gleich mit Freunden geniessen oder die Snacks für den Filmabend vorbereiten kann.
Der Bauherr setzt den Rundgang fort zu den Kinderzimmern, die zum Garten ausgerichtet sind. Rechts vom Kinderbadezimmer befindet sich das offen konzipierte Büro. Daneben, komplett im Erdreich untergebracht, sind die Keller- und Technikräume. Eine schwebende Treppe mit Glasgeländer führt schliesslich wieder ins Obergeschoss. «Wir waren uns unschlüssig, ob wir zwei Treppen brauchen», sagt der Bauherr. Letztlich haben er und seine Frau sich für die zusätzliche Treppe bei der Küche entschieden. «Der Weg von der Küche zum Garten ist so kürzer. Und das Wohnzimmer und die Kinderzimmer können unabhängig voneinander erreicht werden.» Eine Schiebetür zwischen Wohn- und Schlafzimmer macht diese privater.
Glückliche Fügungen und grosse Eigenleistung
«Wir haben vorher in der Nachbargemeinde in einem Terrassenhaus gewohnt», erzählt der Bauherr nach der Hausführung. «Zu zweit war das ideal, doch mit den Kindern wünschten wir uns etwas mit mehr Umschwung.» Für den Ausbau des Terrassenhauses erhielten sie keine Baugenehmigung. Also suchte das Paar nach Einfamilienhäusern in der Region. Durch Zufall erfuhr es von diesem Grundstück, auf dem ein altes Haus zum Verkauf stand. «Vom Altbau war ich nicht überzeugt», erzählt der Bauherr. Also zog er drei Architekten für Umbaumöglichkeiten zurate. «Danny Wanner, einer von den drei Experten, hat uns empfohlen, das bestehende Haus abzureissen und neu zu bauen.» Das Paar lud den Architekten zu sich nach Hause ein «Sein erster Entwurf hat uns sofort überzeugt. Deswegen haben wir uns für einen Neubau entschieden und das Grundstück gekauft.» Eigentlich hätte sich die Familie ab diesem Moment um nichts mehr kümmern müssen, ausser, sich auf den Einzugstermin zu freuen. Doch als Elektroinstallateur war für den Bauherrn klar, dass er im Haus vieles selbst machen würde. Fast täglich besuchte er die Baustelle. «Manchmal habe ich bis in die Nacht gearbeitet, bis mich jeweils meine Frau angerufen hat, um zu fragen, wo ich stecke.» Daniel Schibler rückte die Räume mit seinem Beleuchtungskonzept ins beste Licht. Mit der Hausautomation konnte er zudem seinen Beitrag für mehr Komfort und Sicherheit leisten: «Während unserer Ferien in Südafrika haben wir das Licht und die Storen ferngesteuert, damit das Haus belebt wirkt.» Nachdem sich heute die Sonne noch ein letztes Mal gezeigt und die Wolken in goldenes Licht getaucht hat, wird die gelungene Lichtinstallation des Bauherrn sichtbar.






















Architekten-Interview

Bereits der erste Entwurf hat Familie Schibler überzeugt und konnte 1:1 umgesetzt werden. Kommt das häufig vor?
Bedingt dadurch, dass wir immer ein umfangreiches Wunschbuch von unseren Kunden verlangen und mehrere Vorgespräche führen, kommt es öfter vor. Über die Jahre haben wir uns einen Katalog mit gezielten Massnahmen erarbeitet und können deshalb behaupten, dass der erste Entwurf selten nicht klappt. Hinzu kommt, dass die Kunden sich im Voraus auf unserer Homepage über unsere Architektursprache informieren.
Wovon liessen Sie sich beim Entwurf inspirieren?
Von der Situation, die wir angetroffen haben, und der Umgebung mit ihren Ein- und Ausblicken. Unsere Vision war es, möglichst viel Privatsphäre am Siedlungsrand zu generieren und ein Haus zu kreieren, in dem verschiedene Generationen leben können.
Nicht alle Räume sind rechtwinklig. Weshalb?
Das ist der Baulinie und der Aussichtsrichtung geschuldet. Zudem wollten wir die maximale Breite gemäss Baugesetz nutzen.
Sie haben auch die Badezimmer und die Küche geplant. Worauf haben Sie hier besonders geachtet?
Schlichte Modernität, die über Jahrzehnte zeitlos bleiben wird. Bei der Küche legte man Wert darauf, dass diese wie ein Möbelstück erscheint. Die Badezimmer sollten möglichst lichtdurchflutet mit Aussicht ins Grüne sein.
Was ist Ihr persönliches Highlight?
Wir haben es geschafft, in einem ländlichen Dorf – in dem kein Flachdach erlaubt ist – den Behörden zu beweisen, dass ein Flachdach die richtige und beste Lösung ist, und haben es so bewilligt bekommen. Ausserdem bin ich besonders stolz darauf, was für eine äusserst private Atmosphäre das grosszügige und doch offene Haus hat.
TECHNISCHE ANGABEN




[ ARCHITEKTUR ]
Danny Wanner, Wannerpartner Architekten GmbH, wannerpartner.ch
[ KONSTRUKTION ]
Massivbauweise mit Wärmedämmung | Flachdach | Fassade: Glattputz, braun gestrichen
[ Raumangebot ]
Nettowohnfläche: 266,87 m² | Anzahl Zimmer: 6,5
[ Ausbau ]
Bodenbeläge: keramische Platten | Wandbeläge: Weissputz (glatt gestrichen) | Fenster: Holz-Metall-Fenster
[ Technik ]
Luft-Wasser-Wärmepumpe mit Bodenheizung | Gebäudeautomation: KNX-System (alles via Handy bedienbar)































