Harmonie in Holz
Traditionell, aber dennoch modern gibt sich dieses Einfamilienhaus im Bregenzerwald. Für die Konstruktion, die Fassade und die Einrichtung kam Holz zum Einsatz. Gekonnt verwendet, verströmt es die Wärme und Gemütlichkeit eines Landhauses sowie die schnörkellose Ruhe skandinavischer Interieurs.

Holz durch und durch
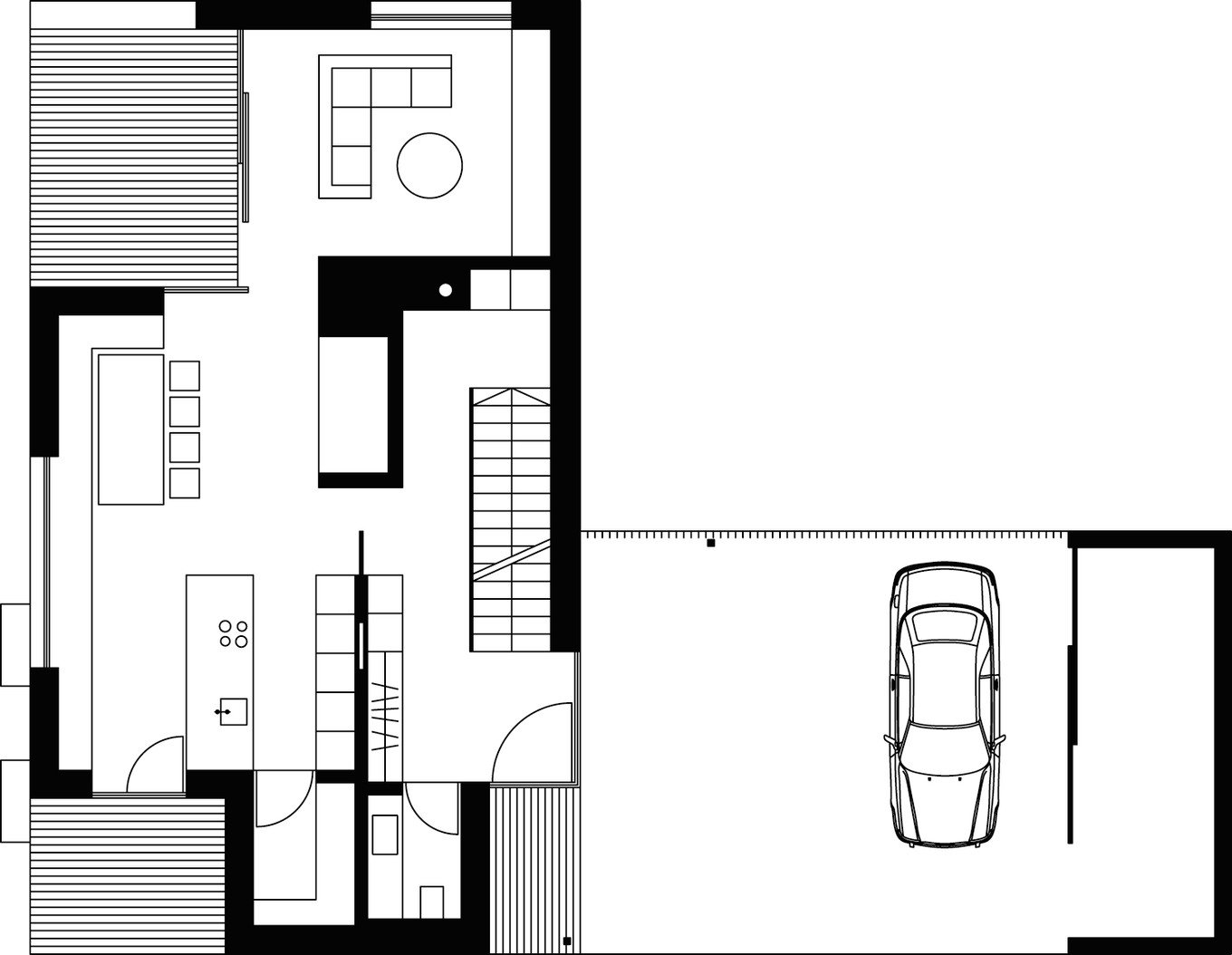
Auch im Inneren des Hauses spielt Holz die Hauptrolle. Wände und Decken wurden mit Weisstanne aus der Region vertäfert. Das horizontal ausgerichtete Täfer sorgt mit seiner ruhigen Maserung für eine entspannte Atmosphäre. Das Parkett besteht aus Eiche, einem Hartholz. Auch die von Jürgen Haller und seinem Team entworfenen Möbel wurden in Eiche ausgeführt. «Wir wollten eine geradlinige Einrichtung aus einer Hand», sagt Christiane Übelher. Also liess die Bauherrschaft die Möbel vom Architekturbüro gestalten und von einem Schreiner anfertigen. Die schlichte Küche wurde vom selben Fachmann ausgeführt und in Weiss gehalten, um einen Gegenpunkt zum Holz zu schaffen. Das Highlight für Architekt und Bauherrschaft bildet die mit Holz ausgekleidete Sitznische mit Cheminée. «Die Ofenbank ist ein typisches Element im Bregenzerwald», sagt Jürgen Haller. «Hier haben wir sie modern interpretiert.» Von Anfang an ein Wunsch der Bauherrschaft, hat sich die Sitznische zu ihrem Lieblingsplatz entwickelt. Zugleich dient sie als Raumteiler im Erdgeschoss, denn dieses wollte die Bauherrschaft offen gestalten. Durch bodentiefe Fenster gelangt man im Nu nach draussen. Um ein Haar wäre das nicht möglich gewesen. «In der Nähe fliesst ein Bach den Hang hinunter», erklärt Christiane Übelher. «Wir haben von der Wildbach- und Lawinenverordnung eine Auflage bekommen, das ganze Haus angehoben zu bauen.» Auf den direkten Zugang zum Garten wollte die Bauherrschaft aber nicht verzichten. Jürgen Haller löste das Problem mit einer Einfriedungsmauer aus Sichtbeton, die sich auf der Hangseite um das Grundstück zieht. «Die Mauer ist nicht nur praktisch, sondern auch ein Blickfang», freut sich die Bauherrin.
Auch die Energieeffizienz und die Nachhaltigkeit lagen der Bauherrschaft am Herzen. Geheizt wird mit Erdwärme, Solarkollektoren auf dem Dach unterstützen die Warmwasseraufbereitung. Viele Installationsarbeiten hat der Bauherr, ein Installateur und Haustechnik-Fachmann, selbst erledigt. «Wir haben auch bei der Inneneinrichtung Hand angelegt», sagt die Bauherrin. Das sei für die Region nicht unüblich, erklärt Jürgen Haller: «Die Bauherren bringen viel Eigenleistung ein.» Mit dem Ergebnis der etwa eineinhalb Jahre langen Planungs- und Bauphase ist die Bauherrschaft sehr zufrieden. Christiane Übelher weiss die Wärme und den Duft des Holzes besonders zu schätzen. «Als unser Sohn zur Welt kam und ich mit ihm aus dem Krankenhaus nach Hause kam, fühlte ich mich sofort wohl, sobald ich die Weisstanne wieder gerochen habe», erinnert sie sich.
TECHNISCHE ANGABEN




[ ARCHITEKTUR ]
Baumeister Jürgen Haller, Mellau (A) | juergenhaller.at
[ KONSTRUKTION ]
Holzbau | Satteldach | Fassade: vertikale Holzschalung mit unterschiedlichen Elementbreiten
[ Raumangebot ]
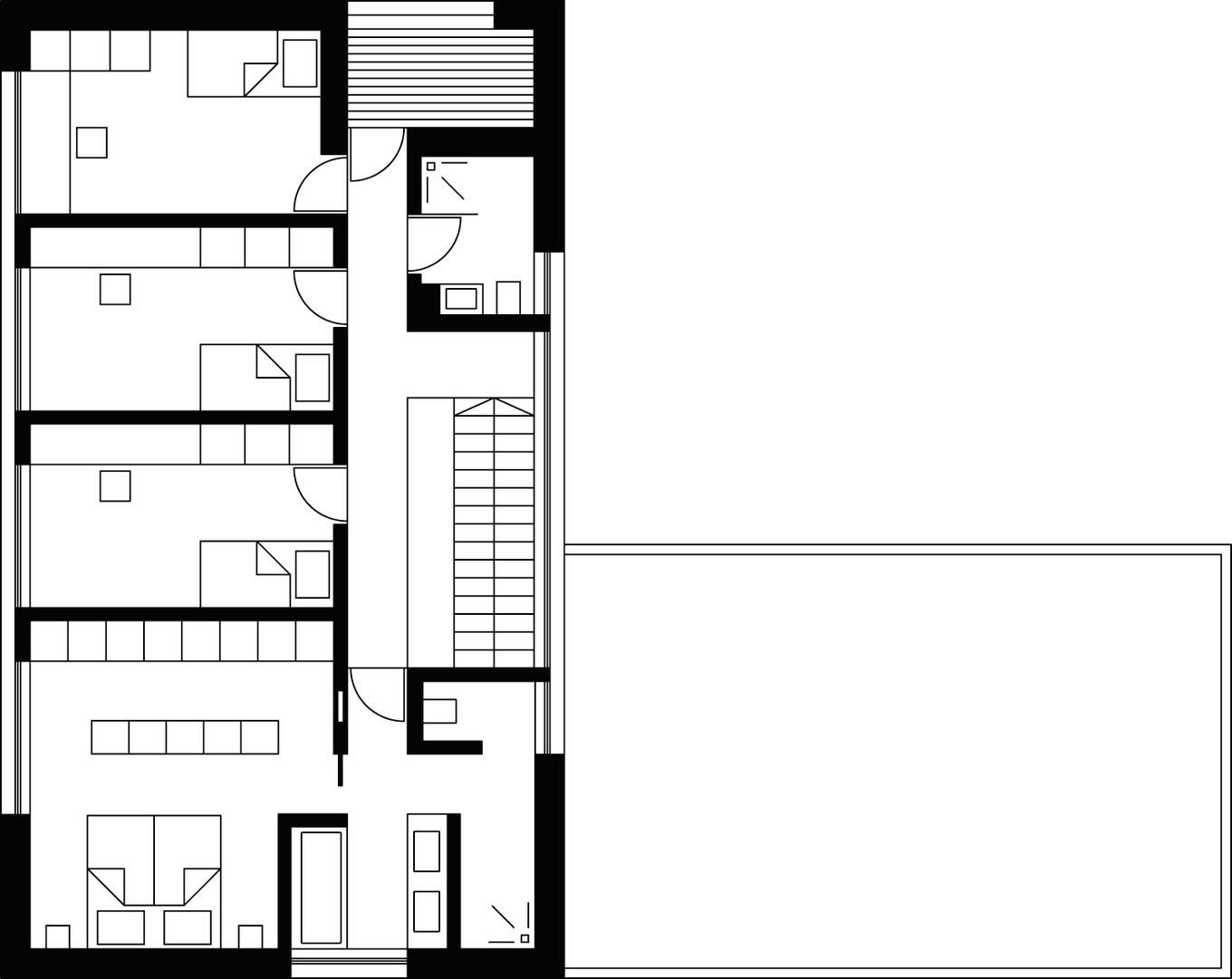
Wohnfläche: 150 m² | Anzahl Zimmer: 5,5
[ Ausbau ]
Boden: Eichenparkett, Platten | Wände: Holztäfer (Weisstanne), Platten | Holzfenster und -türen
[ Technik ]
Erdsonde | Sole-Wasser-Wärmepumpe| Cheminée | Fussbodenheizung | Lüftung mit Wärmerückgewinnung














