Familiennest auf Dreieckgrundstück
Wie die Bergspitze des Vorder Glärnisch im Hintergrund mutet auch die Silhouette dieses Familienhauses in Ennenda an. Die spezielle Parzelle forderte kreative Lösungen.

Claudia und Sebastian Wild standen vor dem Entscheid, das kleine Haus, das einst von Claudias Grosseltern erbaut wurde, zu sanieren oder durch einen Neubau zu ersetzen. Für die Beantwortung dieser Frage zog Claudia Wild ihren Cousin und Architekten Jürg Störi zurate. «Die Bausubstanz des alten Hauses aus dem Jahr 1952 war schlecht. Es gab weder eine Dämmung noch eine Heizung», erinnert sich Jürg Störi. Der entscheidende Punkt war schliesslich die knappe Wohnfläche, die der Altbau für die junge vierköpfige Familie bot. So erhielt das Architekturbüro Kaspar Partner Architekten, in dem Jürg Störi Partner ist, den Auftrag, ein modernes Familienrefugium zu planen. Das Ehepaar gab einzig ein grobes Raumprogramm vor und überliess den Fachleuten die Gestaltung und die Umsetzung.Auch wenn die Architekten freie Hand bei der Planung hatten, stellte – wie oft beim Hausbau – das Budget sie vor Herausforderungen. Um den Neubau in die nachbarschaftliche Umgebung zu integrieren, war für Jürg Störi und sein Team klar, dass sie das Haus in Massivbauweise erstellen wollten. Da der Vater der Bauherrin Bauführer ist, ergab sich die Möglichkeit, die Fassade in hochwertig verarbeitetem Sichtbeton auszuführen, ohne das Budget zu sprengen. Durch diese Zusammenarbeit erarbeitete sich das Architektenteam neues Wissen: «Gemeinsam konnten wir die Konstruktionsdetails zum Sichtbeton wie das Autoeinstelldach, die Schalungsoberfläche, die Treppen und die Betonsitzbank entwickeln. Dieses Know-how konnten wir bereits in nachfolgenden Projekten anwenden.»
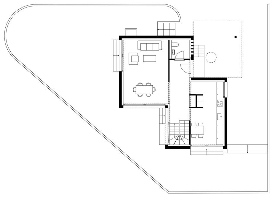
Vieleckiger Grundriss auf dreieckigem Grundstück
Auf drei Seiten ist das Grundstück von Quartierstrassen begrenzt. Das stellte eine besondere Ausgangslage für diesen Neubau dar. «Den quadratischen Baukörper haben wir eingeschnitten. Das hatte den Vorteil, dass wir die Massstäblichkeit sowie die Kleinkörnigkeit trotz grösserem Volumen zu den Nachbarhäusern behielten», erklärt der Architekt. Die «Einschnitte» sind sowohl auf der Nord- als auch auf der Südseite zu erkennen – wie zwei ungleich herausgeschnittene Kuchenstücke, die der einst quadratischen Form eine neue Dimension und Dynamik geben. Das Dach sollte geneigt sein, um mit einem Oberlicht die Sonnenstrahlen in den Innenraum des Obergeschosses zu bringen. Das blecherne Zeltdach schafft einen nahtlosen Übergang zum Schutzmantel – den Aussenwänden. Zwischen Sichtbeton und verputztem Mauerwerk gibt es eine gute Dämmschicht, die eben dem Altbau fehlte. «Wir haben darauf geachtet, dass nur die Aussenwände und wenige Innenwände tragend sind», sagt Jürg Störi. So liesse sich nämlich das Raumkonzept ändern, sollten die Bewohner später einmal danach verlangen. Beheizt wird der Neubau mit innen aufgestellter Luft-Wärme-Pumpe. Die Wärmeverteilung erfolgt mittels Fussbodenheizung. Aus Budgetgründen wurde dieses Heizsystem gewählt, das stimmte so für die Bauherrschaft. Da das Paar bewusst keine kontrollierte Lüftung wollte, kam auch die Zertifizierung nach Minergie-Standard nicht infrage.
Harte Schale, weicher Kern
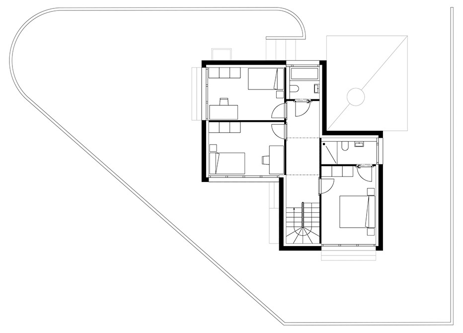
Der Eingangsbereich bildet zugleich den Velo- und Autounterstand. So wird der verfügbare Platz auf dem Dreiecksgrundstück effizient genutzt. Eine kurze Treppe führt ins Haus. Das Raumkonzept ist klassisch: Im Erdgeschoss findet das gemeinsame Familienleben statt, wobei Wohnzimmer, Essbereich und Küche raffiniert verwinkelt zueinander stehen. Jede Zone hat Zugang zum begrünten Garten, und die Natur wird durch die bodentiefen Fenster drinnen erlebbar. Im Obergeschoss sind die Schlafzimmer. Im Untergeschoss gibt es nebst den Keller- und Technikräumen einen grosszügigen Hobbyraum mit einer Sauna.
Während sich das Haus stark und beschützend nach aussen gibt, zeigt es innen sein herzliches Wesen und bietet der Familie ein gemütliches Nest mit warmer Atmosphäre. Dazu tragen insbesondere die Fenster bei, welche die Räume mit Tageslicht fluten, aber auch die gewählte Materialisierung: Helles Eichenholz, weisse Wände – und auf dem Schlafgeschoss werden die Dachschrägen mit Holzriemen akzentuiert. Die Einbaumöbel in Anthrazit setzen Ankerpunkte in den unterschiedlichen Funktionsräumen, ob als Küchenzeile, Unterbauschrank im Badezimmer oder als Garderobe. Durch die reduzierten Farben und Materialien geben die Architekten der Familie Platz, um die Räume mit Leben zu füllen, ganz nach eigenem Geschmack. Einzig in den Badezimmern haben sie sich mehr Spiel erlaubt – mit der Wandverkleidung aus saphirgrün funkelndem Glasmosaik.
Das «Haus in der Ecke», wie es der Architekt Jürg Störi bezeichnet, fügt sich harmonisch in seine nachbarschaftliche Umgebung ein, hebt sich aber dennoch optisch ab, ohne überheblich zu sein. Seine klare Form strahlt Ruhe aus, wie das Bergmassiv, das ihm im Hintergrund den Rücken stärkt.
«Das Herzstück im Obergeschoss ist die Mittelzone, über der zentral das Dachober-licht sitzt.»Jürg Störi, Architekt
TECHNISCHE ANGABEN



[ ARCHITEKTUR ]
Kaspar Partner Architekten AG, kasparpartner.ch
[ KONSTRUKTION ]
Massivbauweise | Wände: Beton, Mauerwerk | Satteldach aus Holzelementen
[ Raumangebot ]
Nettowohnfläche: 160 m² | Anzahl Zimmer: 5
[ Ausbau ]
Böden: Eichenriemenparkett, Glasmosaik in Badezimmer | Wandbeläge: Weissputz gestrichen, Glasmosaik in Badezimmer | Fenster: Holz-Metall-Fenster
[ Technik ]
Luft-Wärme-Pumpe innen aufgestellt | Fussbodenheizung |
















