Ein Spiel von Ein- und Ausblicken
Eine raffinierte Fassade und ein ebenso ausgeklügelter wie schlichter Grundriss kreieren ein Zuhause, das sich zunächst zurückhaltend gibt, ehe es seine Offenherzigkeit zeigt.

Architekturbüro Lin.Robbe.Seiler
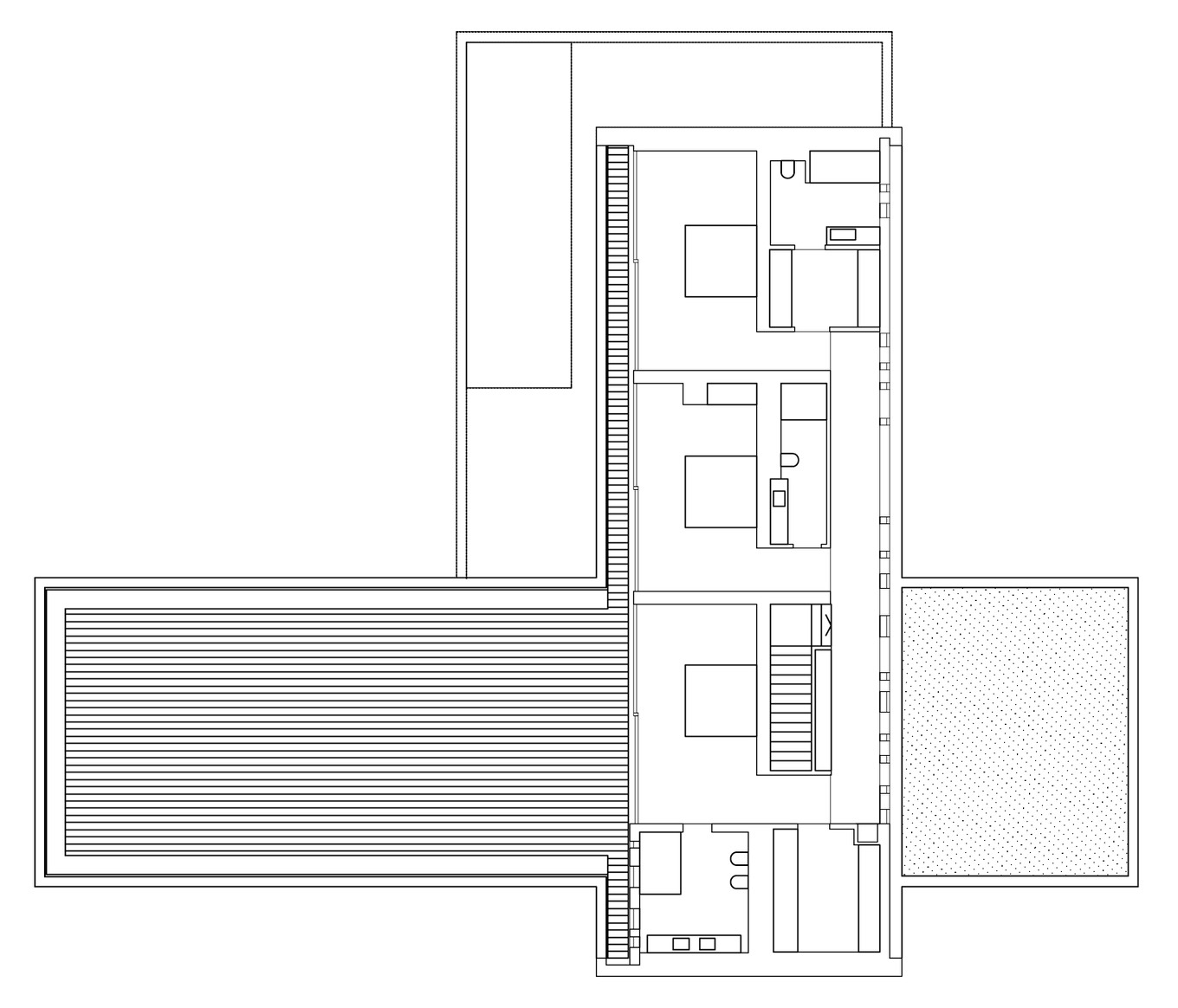
Gewünscht war ein individuelles Haus für die fünfköpfige Familie. Aus den Gesprächen über die Bedürfnisse entwickelten die Architekten ein Konzept, das schlicht ist und doch fasziniert. Im Grunde besteht es aus zwei Kuben, die im rechten Winkel zueinander gerichtet sind und übereinanderlappen. Daraus ergibt sich ein kreuzförmiger Grundriss mit vier Gartenflächen. «Die Platzierung des Baukörpers inmitten des Grundstücks, der dieses in vier Aussenbereiche einteilt, ist eine Besonderheit bei diesem Projekt», lässt das Architekturbüro mitteilen. Erreicht wird das Haus auf dem Eckgrundstück von der Nordseite. Im Erdgeschoss, das nach Süden ausgerichtet ist, findet das Familienleben statt. Die gemeinschaftlichen Räume sind zwar offen gestaltet, aber über verschiedene Wege miteinander verbunden. Insbesondere wenn die Fenster komplett offen sind und der Innen- mit dem Aussenraum verschmilzt, würden die Laufstrecken – wenn sie denn sichtbar wären – Zickzacklinien zeichnen. Vom Eingangsbereich geht es geradeaus zur ersten Wohnecke mit Cheminée sowie bunten Sofas von B & B Italia und weiter zur geräumigen weissen Küche von Bulthaup. Links vom Entree sind der elegante Essbereich und eine zweite gemütliche Wohnecke. Eine Gästesuite ist ebenso in diesem Ostflügel untergebracht. Die Poollandschaft ist südwestlich ausgerichtet. Sie zieht sich vom Esstisch übers Eck zur Küche, wo draussen ein Sitzplatz zum Verweilen einlädt. Rechts von der Haustür befinden sich die Garderobe sowie ein Tages-WC, wobei eine Treppe hoch zu den Privaträumen führt. Sowohl der Elternbereich als auch die beiden Kinderzimmer verfügen über ein eigenes Bad und einen Zugang zur weitläufigen Terrasse. Auch die raumhohen Fenster öffnen hier oben den Blick auf den Genfersee und die Alpen. Das durchdachte Lichtkonzept mit Leuchten der Marke Flos, aber auch die Kunstwerke untermalen das exklusive Designambiente.
Fassade mit bleibendem Eindruck
Sichtbeton, Glas und Holz sind die tragenden Elemente dieser Villa. Während die Kuben jeweils auf vier Seiten mit Beton gerahmt sind, erlauben die zwei gegenüberliegenden Fensterfronten Transparenz. Über der Verglasung liegen jedoch Schiebeelemente aus Zedernholz, die bei Bedarf Sichtschutz bieten und damit Privatsphäre generieren oder je nach Sonnenstand Schatten spenden. Durch diese Konstellation muten die beiden Kuben wie zwei Rollladenschränke an, deren Türen sich seitlich beiseiteschieben lassen, um Einblick in das Innenleben zu gewähren. Ein besonderes Augenmerk haben die Architekten auf die Betonschalung gelegt, welche die gleiche Form und Struktur der Holzfassadenverkleidung aufweist. «Die Betonschalung zeichnet vertikale Linien in drei unterschiedlichen Tiefen. Sie nehmen Bezug auf die drei Schattierungsstufen, die bei der Behandlung der Holzfassade verwendet wurden», erklärt das Team von Lin.Robbe.Seiler. So hochwertig die Materialisierung aus natürlichen Werkstoffen ist, so umweltfreundlich und energieeffizient ist die Heiztechnik dank Erdsonde und Solarpaneelen. Dass diese Villa bis aufs kleinste Detail durchdacht und auf die Bedürfnisse der Bewohner perfekt zugeschnitten ist, lässt sich auch aus der Zeit ableiten, die man sich für die Planung und den Bau genommen hat. Insgesamt sechs Jahre dauerte es, bis die Villa vollendet war. «Es ist eine Architektur, die sich durch die Einfachheit der Formen, ihre grossen, offenen Innenräume und deren Bezug zu den Aussenräumen auszeichnet», beschreibt das Architekturbüro sein Projekt zusammenfassend.
TECHNISCHE ANGABEN



[ ARCHITEKTUR ]
Lin.Robbe.Seiler | lrs.ch
[ KONSTRUKTION ]
Massivbau | Flachdach | Fassade: Sichtbeton, Zedernholz
[ Raumangebot ]
Nettowohnfläche: 594 m² | Anzahl Zimmer: 8
[ Ausbau ]
Boden: Parkett | Wandbeläge: Putz | Fenster: Metall
[ Technik ]
Fussbodenheizung | elektrische Wärmepumpe, Erdwärmesonde | Solarmodule
















