Ein Fall für Architektur
Die regionale Baukultur beeinflusste die Architektur des Hauses im Ausseerland in der österreichischen Steiermark massgeblich. Obwohl Holz innen wie aussen im Vordergrund steht, kommt der Bau ohne rustikalen Charakter daher.

[ WAS ]
Haus zwischen den Bergen im Ausseerland in der österreichischen Steiermark.
[ WER ]
Gangoly & Kristiner Architekten ZT GmbH | Hans Gangoly, Irene Nikolaus, Elisabeth Knorr und Norbert Schindler | gangoly.at
[ GRUNDSTÜCK ]
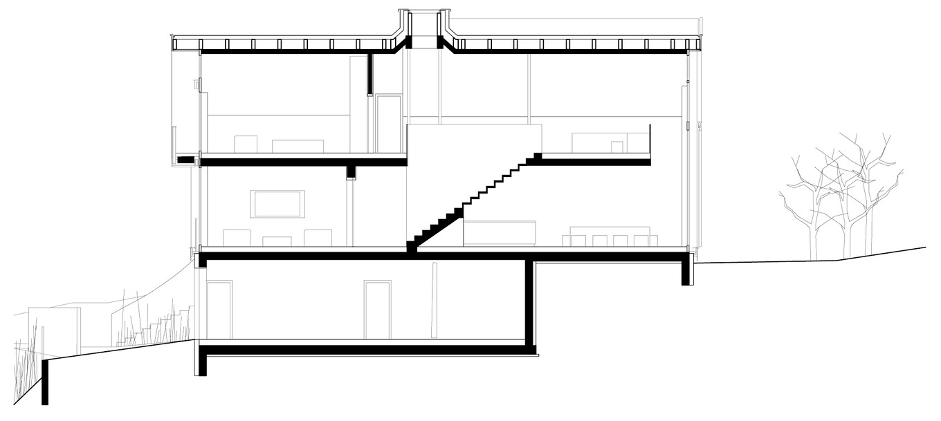
Das Einfamilienhaus bietet auf drei Stockwerken und insgesamt 300 Quadratmetern Fläche Platz für Familie und Gäste.
[ HERAUSFORDERUNG ]
Das Ausseerland im steirischen Salzkammergut ist mit seinen Seen, Wiesen und Bergmassiven der Inbegriff einer idyllischen Landschaft. Der spezifische Umgang mit der regionalen Bautradition und ein besonderer Respekt vor der Landschaft prägen die Bauten in der Region. Die besondere architektonische Stimmung mit den Vorstellungen eines zeitlosen, bequemen Hauses mit ausreichend Platz zu verbinden, bezeichnet Architekt Hans Gangoly als eine herausfordernde Aufgabe.
[ LÖSUNG ]
Der kreuzförmige Grundriss des Hauses mit Aussichtsgiebeln in alle vier Himmelsrichtungen schafft mühelos eine Verbindung zu den umliegenden architektonischen Vorbildern. Mit den grossflächigen Fenstern im Ostgiebel des Hauses wird auf simple Weise der Ausblick auf den See und die Berge definiert, gleichzeitig werden aber auch räumliche Zonen im Haus – wie beispielsweise im Ess -und Aufenthaltsbereich – geschaffen. Durch das doppelte Satteldach verfügt jedes Schlafzimmer im Obergeschoss über einen eigenen Balkon, was Rückzug und Aussicht miteinander vereinen lässt.
[ BESONDERHEIT ]
Holz als Material steht bei diesem Bau deutlich im Vordergrund. Aussen ist das Naturmaterial als vorvergraute Fassadenhülle anzutreffen. Im Inneren des Einfamilienhauses erzeugt der Rohstoff in Form von weisslich lasiertem Eichenholzboden und -wänden eine wärmende Grundstimmung. In Kombination mit dem Sichtbeton und den goldenen Messingelementen, aber auch mit den farbenfrohen Pop-Art-Kunstwerken werden moderne visuelle Kontraste gesetzt. Samtene Textilien in erdigen Farbtönen verstärken diese Akzente. Auch im modernen Cheminéebereich kommt das Haus ohne rustikalen Charme daher.
















