Ein Fall für Architektur
Alles andere als gewöhnlich ist dieses Familienhaus in Südkorea. Der Architekt begann seinen Entwurf mit der Frage, wie Architektur in die Welt der Emotionen eindringen kann.

[ Was ]
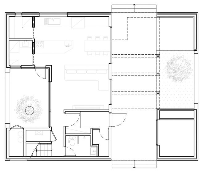
Einfamilienhaus Manhwaricano in Manwha-ri, Südkorea
[ Wer ]
Architektur: Kim Seongyoul | Rieuldorang Atelier | rieuldorang.com
[ Grundstück ]
Rund eine halbe Stunde von der südkoreanischen Hafenstadt Ulsan entfernt suchen immer mehr Städter Zuflucht im ländlichen Gebiet. So entstehen in Manwha-ri laufend neue Familienhäuser auf neu erschlossenen Bergen und Feldern. Dieser Neubau mit einer Fläche von 144,25 Quadratmetern steht neben Häusern im amerikanischen Baustil, die weder zueinander noch zur Umgebung passen.
[ Herausforderung ]
Für die Familie wollte der Architekt einen geschützten Raum schaffen, der auch die optische Unruhe durch die umliegenden Bauten ausgleicht. Die Architektur sollte viele Facetten im gewohnten Alltag bieten.
[ Lösung ]
Der Architekt nahm die Idee vom gewohnten Haus mit Giebeldach auf und kehrte den Korpus so um, dass ein Kubus mit giebelförmigen Aussparungen entstand. Das sorgt für Ruhe und reizvolle Spannung zugleich.
[ Besonderheit ]
Die Arkaden bilden einen geschützten Aussenraum. Durch den unterschiedlichen Lichteinfall im Verlauf des Tages entstehen unterschiedliche Stimmungen.



















