Detail-verliebt
Trotz eines soliden Budgets kam die Bauherrschaft mit einem Architekten auf keinen gemeinsamen Nenner. Also wandte sie sich an den Generalunternehmer Kobelthaus und erhielt genau das Haus, das sie sich immer gewünscht hatte.

Geschickte Raumaufteilung
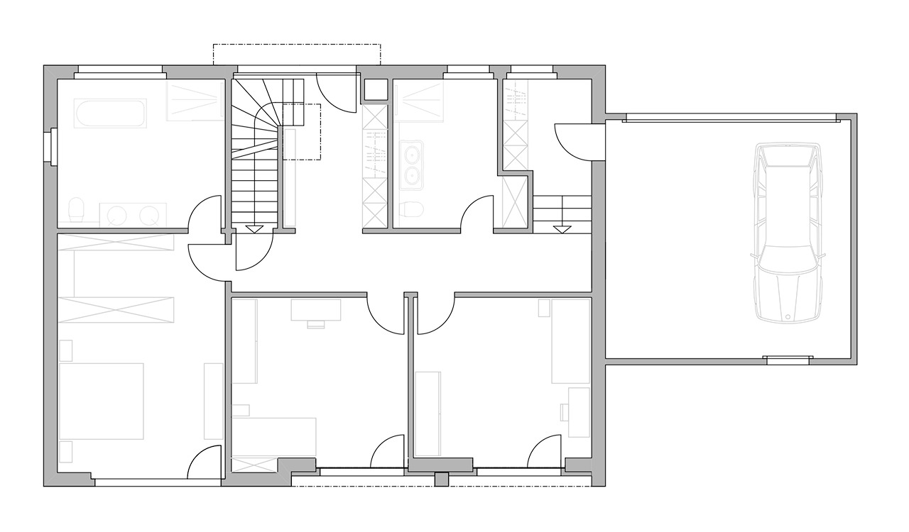
Von aussen wirkt der dreigeschossige Bau imposant. Bereits von der Strasse ist durch die grosszügige Fassadenverglasung die markante Wendeltreppe erkennbar, die direkt vom Eingang in die oberen Geschosse führt. Durch einen eleganten Vorgarten gelangt man zur Eingangstür, hinter der sich ein helles Entrée verbirgt. «Unser Wunsch war es, die Schlafzimmer im Erdgeschoss zu haben», erklärt die Bauherrin. So haben zwei Töchter des Ehepaars direkt aus ihren Zimmern einen Zugang zum Garten hinter dem Haus, wo sich eine Lounge für die Eltern und ein Spielturm sowie ein Trampolin für den Nachwuchs befinden. Neben den Kinderzimmern liegt das grosse Schlafzimmer derEltern, in dem zurzeit auch die jüngste, knapp einjährige Tochter des Paares schläft. «Eigentlich haben wir im Haus nur zwei Kinderzimmer eingeplant», schmunzelt die Bauherrin. «Aber solche positiven Überraschungen nehmen wir sehr gerne hin!»
Hochwertige Ausstattung
Ein weiterer Wunsch des Paares war ein schönes, grosses Elternbad. Direkt erreichbar aus dem Elternschlafzimmer bietet das geräumige Badezimmer, das die Bauherrschaft von talsee einrichten liess, eine weitläufige Walk-in-Dusche mit Glaswand sowie eine attraktive, im Raum frei stehende Badewanne. Die älteren Töchter teilen sich ein Kinderbad, das aus dem Gang erreichbar ist.
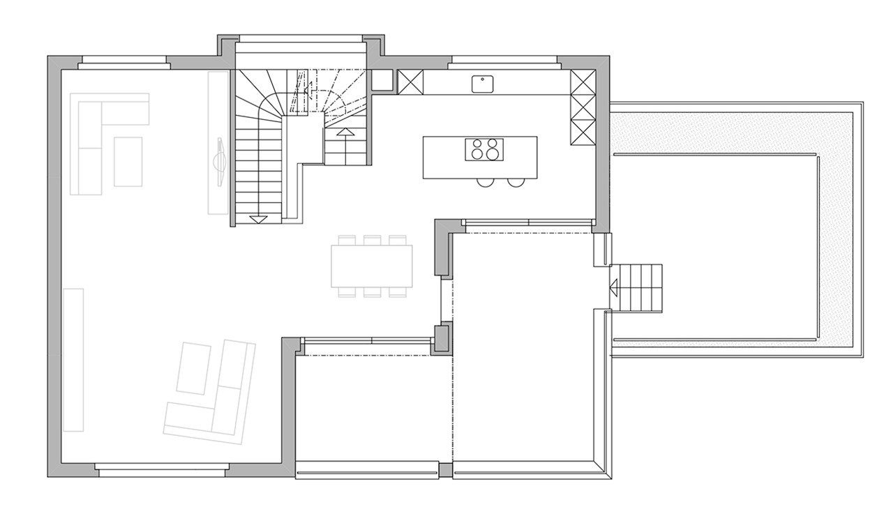
Steigt man die einladende Treppe hoch, findet man sich im Wohn- und Essbereich wieder. Zur linken Hand liegt die grosse Küche mit Kochinsel, die das Paar von Poggenpohl erstellen und mit Geräten von Miele sowie Gutmann ausstatten liess. Die schwarze Granitabdeckung, kombiniert mit strahlend weissen Hochglanzfronten, lässt die Küche stilecht minimalistisch wirken. Für Wärme und Gemütlichkeit sorgt das rustikale Eichenparkett, das sich nahtlos durch das ganze Stockwerk und auch über die Treppe zieht. Der lange Esstisch aus Eiche nimmt den Holzton wieder auf. Vom Essbereich aus gelangt man über grosse Schiebefenster auf die Terrasse, die mit ihrem warmen Holzboden an ein Schiffsdeck erinnert. Ein paar Treppenstufen verbinden die Terrasse mit dem tiefer gelegenen Dach der Garage, wodurch hier ein weiterer gemütlicher Aussenraum entsteht.
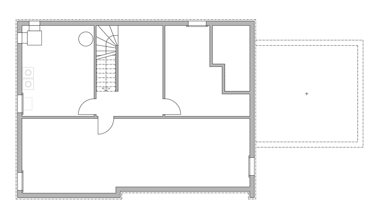
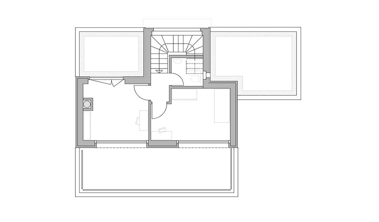
Auf der rechten Seite der Treppe erstreckt sich der Wohnbereich. Ein schwebendes weisses Cheminée in der Mitte unterteilt den Raum in das eigentliche Wohnzimmer mit Sofa und den Lese- und Kuschelbereich, der mit Sesseln und Kuscheltieren Kinder wie auch Erwachsene zum Ausruhen einlädt. Eine Ebene weiter oben liegt das Attikageschoss des Hauses, das ein Gäste- und Spielzimmer mit Gäste-WC sowie ein kleines Büro beherbergt. Auch dieser Bereich verfügt über seine eigene Terrasse. Und damit Haustechnik, Waschküche und Stauraum nicht zu kurz kommen, wurde das Haus unterkellert.
«Kobelthaus hat unsere Wünsche vollumfänglich erfüllt», freut sich die Bauherrin. «Helle, grosse Räume, eine romantische Treppe, hohe Decken und viel Glas – all das findet sich heute in unserem Haus wieder.» Auch mit dem Bauprozess war die Bauherrschaft äusserst zufrieden. «Es wurde alles termingerecht erstellt, und die kleinen Fertigungsmängel wurden schnell und unkompliziert korrigiert», sagt die Hausbesitzerin. Diesen Eindruck bestätigte dem Paar auch ein unabhängiger Experte, von dem es das Haus prüfen liess. Die Bauherrin ist überzeugt, dass auch Familien mit einem höheren Budget sehr gut mit einer Generalunternehmung bauen können. «Wir haben hochwertig gebaut, und das Haus überzeugt mit vielen durchdachten Details», sagt sie. «Es ist wunderschön geworden!»
Die Bauherrin
TECHNISCHE ANGABEN




[ ARCHITEKTUR ]
Kobelt AG | kobelthaus.ch
[ KONSTRUKTION ]
Massivbau | Flachdach | Fassade: Verputz, Holz
[ Raumangebot ]
Nettowohnfläche: 229 m² | Anzahl Zimmer: 6,5
[ Ausbau ]
Boden: Parkett, Platten | Wandbeläge: Verputz, Platten in den Nassräumen | Holz-Metall-Fenster
[ Technik ]
Bodenheizung | Luft-Wasser-Wärmepumpe | Cheminée

















