Das «Champagner- Haus»
Stadt und Land: Der Architekt Bertrand Counson aus Nyon hat eine Vorliebe für städtische Architektur, selbst wenn das Projekt ausserhalb der Stadt liegt. Dieses Einfamilienhaus in Founex ist ein gutes Beispiel dafür.

Eines Tages entdeckten sie jedoch eine Anzeige auf Homegate. Ein von einem Obstgarten besetztes Grundstück in Founex in der Nähe einer Bauzone stand zum Verkauf. 400 Meter zur Schule, in der Nähe von Bahnhof und Tennisplatz, 15 Autominuten vom Flughafen entfernt, mit schöner Aussicht auf den Jura. Das Grundstück entsprach voll ihren Bedürfnissen, und so kauften sie es. Das wichtigste Kriterium war jedoch der private Charakter des Ortes.
Die schmale Parzelle erinnerte den Besitzer an seine Londoner Zeit: «Da man im London der viktorianischen Häuser wegen der strengen Heimatschutzregeln nicht in der Höhe bauen konnte, baute man unterirdische Wohnungen, was mir die Idee gab, unseren Lebensraum auf die gleiche Weise zu erweitern.»
Tatsächlich begann dieser Trend in London Ende der Neunzigerjahre. Statt aus den engen Häusern auszuziehen, baute man sie nach unten aus. Seit der Rezession 2008 werden in den wohlhabenderen Gegenden Süd- und Westlondons gar grosse unterirdische Wohnflächen gebaut. Oftmals beherbergt dieser neue Raum einen luxuriösen Marmorpool, ein Heimkino oder eine Garage für Oldtimerautos.
Der Wunsch nach Raum und Privatsphäre
Davon war jedoch hier nicht die Rede. Die Familie wollte nur zusätzlichen Spielraum für die Kinder und einen Raum, wo auch einmal ein Gast nächtigen könnte. Deshalb beauftragte sie den Architekten Bertrand Counson, den Bruder der Bauherrin, mit dem Bau ihres Hauses. Die Familie wünschte sich grosse Räume und eine geschützte Privatsphäre. Der Architekt riet ihr zunächst, keine Ideen aus Zeitschriften oder Instagram zu sammeln, um offen für architektonische Ideen und Konzepte zu bleiben. So konnten Bertrand Counson und die Projektleiterin Mélanie Verdonck dieses Projekt mit viel gestalterischer Freiheit entwickeln.
Ausgangspunkt für die Architekten war also das mit Obstbäumen besetzte Grundstück. Die erarbeitete Skizze umfasste eine Studie mit verschiedenen Form- und Grundriss-Varianten des Hauses. Bertrand Counson hatte sich bisher hauptsächlich mit Stadtarchitektur befasst, und so gab er auch diesem Projekt einen «städtischen» Touch, auch wenn das Projekt ausserhalb der Stadt angesiedelt ist. «Auch der Bau einer Villa ist Teil der Stadt-Land-Entwicklung. Wir stellen daher immer die Frage nach dem Zusammenhang mit der städtischen Umwelt.» In diesem Fall materialisiert sich die städtische Präsenz durch den Bürgersteig und die Strasse gegen Süden, entlang derer der Architekt eine einen Meter hohe Mauer baute. Flachdach, Mauer, Obstgarten als Ausgangspunkt: Die Gemeinde Founex war sehr offen für diese ungewöhnlichen Merkmale. Dies in einem kleinen Dorf, wo sonst Satteldächer dominieren. Die Baugenehmigung war somit kein Hindernis. Einzige Anforderung war, dass drei Bäume auf der Baustelle erhalten werden mussten.
Die Architekten haben sich vor allem zum Ziel gesetzt, den Bauherren ein privates Wohnumfeld zu bieten. Ihnen zufolge ist das Haus vor allem ein Zufluchtsort. Die Mauer am Rand des Weges ermöglicht es, einen privaten Innenhof zu schaffen. Im Süden schottet die L-förmige Form die Villa vom Nachbarhaus auf der Juraseite ab und bildet im Osten eine Terrasse. Die Architekten beschlossen, zwei wichtige Elemente der Anlage hervorzuheben: eine grosse Linde im Nordosten und den bestehenden privaten Park im Osten. Die Planung dauerte sechs Monate, gefolgt von 14 Monaten Bauzeit.
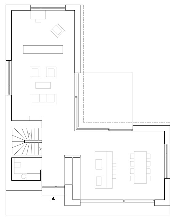
Ein L-förmiges Einfamilienhaus
Die Bordsteinmauer und die Garage, die nach dem Bürgersteig beginnen, wurden gebaut, um einen Innenhof zu schaffen, der den Zugang für Fussgänger und Fahrzeuge organisiert. Das enge Gelände inspirierte die Architekten dazu, eine Aufteilung zu wählen, die es ermöglicht, das gesamte Gelände ohne Restflächen zu nutzen. Für die Form des Hauses wählten sie ein L.
Counson nennt seine Architektur mineralisch und monolithisch. Das hohe Volumen hat identische Fensteröffnungen, mit Ausnahme der grossen Fenster zur Terrasse im Süden und der Eckfenster zur Terrasse im Osten. Im Erdgeschoss entsteht dadurch ein fliessender Übergang vom Innen- zum Aussenraum. Die Küche und das Wohnzimmer sind in ständigem Kontakt, während das Wohnzimmer durch eine Wand und einen Holzschrank von einer Büroecke getrennt ist, deren grosses Fenster den Obstgarten überblickt.
Im ersten Stock befinden sich die Privaträume der Familie. Das Schlafzimmer beziehungsweise die Elternsuite sind auf der Nordseite des L angesiedelt, mit Bad und Diele. Die Eltern haben von ihrem Schlafzimmer aus einen weiten Blick auf den Obstgarten im Norden. Ein Fenster im Flur öffnet sich zum benachbarten Park.
Eine grosse Wohnfläche für eine grosse Familie
Die Architekten trennten die Elternschlafzimmer von den drei Kinderzimmern, welche durch einen breiten Durchgangsbereich verbunden sind. Dieser dient gleichzeitig als Spiel- und Ruhezone. Die Kinderzimmer befinden sich entlang dieser Durchgangszone auf der Südseite des Hauses mit Blick auf Rasen und Strasse.
Das erste Stockwerk und das Erdgeschoss haben jeweils eine Wohnfläche von 145 Quadratmetern. Der Platz ist somit inklusive der 100 Quadratmeter Untergeschoss gut ausgelastet und bietet Eltern und Kindern ausreichend Raum auf insgesamt 390 Quadratmetern Wohnfläche.
Was das Untergeschoss betrifft, so sind die Räume mit grossen Oberlichtern ausgestattet, die Licht einfluten lassen. In den Spielräumen können die Kinder ihre Lego- und Playmobil-Konstruktionen herumliegen lassen. Im Untergeschoss befinden sich auch Räume, die als Lager und für Sportgeräte benutzt werden. Zudem sind im Untergeschoss die Luft-Wärme- und Klimapumpe installiert, die als Fussbodenheizung im Winter und zur Fussbodenkühlung in der Sommerzeit dienen.
Unter dem Rasen und vor der Aussenmauer erstreckt sich das Untergeschoss bis zur Garage, mit einem unterirdischen Zugang zu dieser. Neben der Wärmepumpe ist das Dach des Hauses mit einer 100 Quadratmeter grossen, fast unsichtbaren Photovoltaikanlage ausgestattet, die das Haus energieautonom macht. Ausserdem wurde im Garten ein Regenauffangbecken unter der Erde installiert.
Anstelle der von Bertrand Counson vorgeschlagenen Stahlbetonfassade bevorzugten die Bauherren für ihre Fassade eine feinere Färbung des Betons. Das Architekturbüro beauftragte die Firma Desax mit der Fertigstellung der Betonglasur. Der Beton selbst kommt aus dem Jura und hat bereits eine gelbe Färbung, die dem Haus im Dorf den Spitznamen «Champagnerhaus» einbrachte.
Rund um die Uhr von Sonne umgeben
Für die Bauherrschaft wie für den Architekten war es wichtig, ein Schweizer Haus in der Schweiz mit Schweizer Produkten, Materialien und Geräten wie beispielsweise von V-Zug, Laufen und Bauwerk zu bauen.
Die junge Familie fühlt sich in ihrem neuen Zuhause bestens aufgehoben. Nachdem die Sonne aufgegangen ist, ist sie den ganzen Tag über präsent: morgens auf der Obstgartenseite, um 11 Uhr überquert sie die Spitze des Hauses, um schliesslich auf der Westseite wieder einzutreten.
TECHNISCHE ANGABEN



[ ARCHITEKTUR ]
Bertrand Counson | counson architecte |counson-architecte.ch
Bauleitung: Mélanie Verdonck
[ KONSTRUKTION ]
Massivbau | Flachdach | Fassade: Stahlbeton
[ Raumangebot ]
Nettowohnfläche: 390 m² | Anzahl Zimmer: 5
[ Ausbau ]
Boden: Parkett | Wandbeläge: Verputz | Fenster: dreifach isoliert
[ Technik ]
Luft-Wärme- und Klimapumpe | Fussbodenheizung | Photovoltaikanlage





















