Bionisches Raumschiff
Mag sein, dass dieses Objekt Assoziationen an ein Ufo weckt, doch der Architekt Ivan Redi ging von einer organischen Form aus, als er den ersten Entwurf für dieses Zweipersonenhaus in Graz zeichnete.

Bionisches Gestaltungsprinzip
«Die Form des Baukörpers entwickelte sich aus den performativen Aspekten des Design-Prozesses», erklärt Ivan Redi. Er adaptierte das sogenannte bionische Gestaltungsprinzip an die Architektur. Das bedeutet, dass er Konstruktionen und Funktionsweisen aus der Biologie, wie beispielsweise die Form der Muschel oder die Nutzung der Sonnenenergie, auf das Design des Baukörpers übertrug. Es ging ihm dabei insbesondere um formale und funktionale Optimierung. «Wie in der Natur gibt es auch beim Bau eines Einfamilienhauses unglaublich viele Elemente, die wie ein Netzwerk zusammenhängen», erklärt Ivan Redi. Die Idee sei also, höchst Komplexes einfach zu gestalten, zu reduzieren, bis das Wesentliche übrig bleibt. Konkret bedeutet dies, aus dem kleinen Grundstück das Maximum an Wohnfläche herauszuholen, trotz Nordausrichtung das Sonnenlicht, aber auch die Sonnenenergie optimal zu nutzen, die Hanglage als Chance zu sehen, um die schöne Aussicht noch mehr zu betonen und dem massiven Baukörper Leichtigkeit zu verleihen. So fügt sich der Bau harmonisch in die Landschaft ein und öffnet sich wie eine Muschel, wobei die Öffnung auf der Nordseite die 70 Quadratmeter grosse von Wind und Witterung geschützte Terrasse mit hervorragendem Weitblick und auf der Südseite den überdachten Einstellplatz darstellt. Die Form bietet auch ein ideales Verhältnis von Oberfläche und Volumen, wodurch der Wärmeverlust minimiert wird. Die Geometrie ist darüber hinaus aerodynamisch, um von der Luftströmung besser zu profitieren.
Aktivhaus – mehr als energieeffizient
In der Entwurfsphase wandte der Architekt die Methode der detaillierten Computersimulation, das «Building Information Modeling» an. Auf diese Weise konnte er alle Elemente berücksichtigen und optimal aufeinander abstimmen. Darunter fällt u. a. die Bemessung und Optimierung der Energieeffizienz. Das Ziel war, den Standard eines Passivhauses zu erreichen, ohne jedoch die Bewohner in der Nutzung ihres Hauses einzuschränken. «Ein Passivhaus ist quasi ein rechnerischer Wert. Die Bewohner müssen diszipliniert sein und dürfen, salopp gesagt, die Fenster im Winter nicht öffnen, um die Energiebilanz nicht durcheinander zu bringen», sagt Ivan Redi. Aus diesem Grund konzipierte er dieses Haus als Aktivhaus, da der Wert eines Passivhauses selbst dann erreicht wird, wenn sich die Bewohner ihrem aktiven Lebensstil ohne Einschränkungen widmen. Dies ist unter anderem möglich, weil bei der Planung auch der Sonnenstand zu den verschiedenen Jahreszeiten berücksichtigt wurde. So wird im Winter die Solarenergiegewinnung maximiert, und im Sommer kann die Erhitzung mittels der Überdachung auf ein Minimum reduziert werden. Eine entscheidende Rolle bei der Nutzung der Sonnenenergie spielt auch die Verwendung von Beton, der in der Mitte des Raumes als tragendes Element fungiert. Die in diesem Betonelement tagsüber gespeicherte Energie wird nachts in den Raum abgegeben, sodass ein angenehmes Raumklima entsteht. Weiter hat der Architekt bewusst darauf geachtet, dass möglichst viel Tageslicht die Räume durchflutet, damit die Bewohner tagsüber trotz der Nordausrichtung keine künstlichen Lichtquellen benötigen.
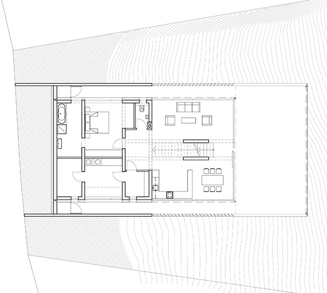
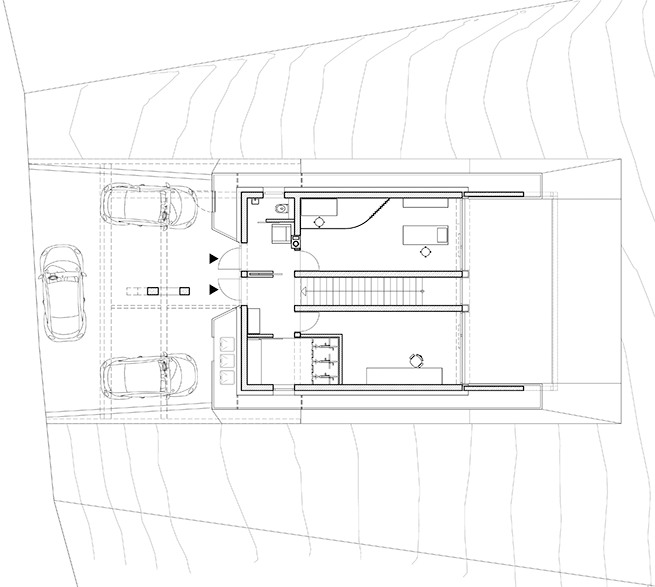
Auch was das Raumkonzept betrifft, kam der Architekt zum bestmöglichen Ergebnis. Das Augenmerk richtete er dabei auf eine funktionale Organisation. So befinden sich die Arbeitsräume der Bauherrschaft im obersten Geschoss, wo auch die Patienten der Bauherrin Zutritt haben. Im darunter liegenden Stockwerk liegen die Küche sowie der Ess- und Wohnbereich mit Terrasse, wo auch Gäste willkommen sind. Schliesslich sind auf dieser Ebene zur Hangseite mit Schlafzimmer und Badezimmer die Privaträume untergebracht.
Zu gewagt für die Schweiz?
Die futuristisch anmutende Architektur ist nun nachvollziehbar. Und auch die Bauherrschaft ist sehr zufrieden mit dem Ergebnis. Doch würde dieser Stil auch in der Schweiz funktionieren? «Dieses Haus entspricht nicht der typischen Einfachheit der Schweizer Architektur, die von rechteckigen Kuben geprägt ist. Ich denke, in der Schweiz würde es noch mehr mutige Architektur vertragen. So gesehen könnte man dieses Haus als Antithese zu der in der Schweiz gewohnten Bauweise betrachten», erläutert Ivan Redi sein Empfinden.
Ivan Redi, Architekt
TECHNISCHE ANGABEN


[ ARCHITEKTUR ]
Ortlos Space Engineering | Ivan Redi und Andrea Redi | ortlos.com
[ KONSTRUKTION ]
Massivbau, Sichtbeton, Mauerwerk | Fassade: Eternit, doppelschalig, mineralischer Putz
[ Raumangebot ]
Grundstück: 770 m² | Nettowohnfläche: 173 m² | Anzahl Zimmer: 4
[ Ausbau ]
Boden: Parkett, Platten, Naturstein, Sicht-Estrich | Wandbeläge: Putz | Fenster: 3-fach-Verglasung Alu, Glasoberlichter, Glasfront mit Fixverglasung und Schiebetüren
[ Technik ]
Aktiv-Haus | Betonkern-Aktivierung | Erdwärme | Photovoltaik-Paneele | Fussbodenheizung | BUS-System, intelligente Haussteuerung











