Ausgereifte Architektur
Jede Idee wurde zu Ende gedacht, jede Entscheidung war wohlüberlegt. Das Ergebnis ist somit vollkommen. Die sechsköpfige Familie erfreut sich eines modernen Hauses mit alpinem Flair und einer malerischen Aussicht von der Rigi bis zum Pilatus.

Zeitgemässer Alpin-Chic
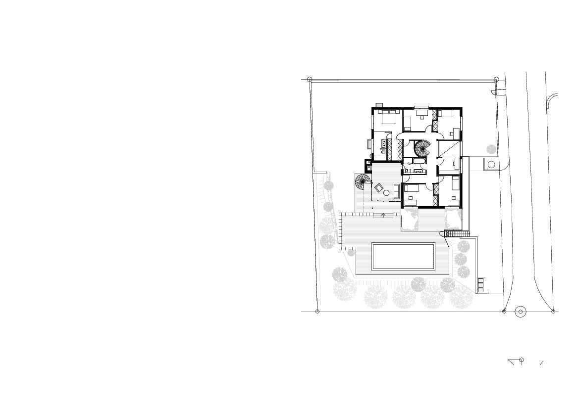
Die Eingangstür befindet sich im Osten zum Quartierweg hin. Hier sind alle drei Ebenen des Hauses sichtbar, welches in einen leichten Hang eingebettet ist. Unmittelbar daneben ist die Garage. Von Gneiss-Steinen gestützt und eingefasst und mit einem kleinen Brunnen, dessen Kupferschale Bezug auf die kupferfarbenen Vordächer nimmt, ist der Eingangsbereich durchaus repräsentativ. Wer das Haus betritt, steht in der grosszügigen und lichtdurchfluteten Garderobe und blickt hinauf zur Galerie bis unters Dach. «Es war klar, dass der Wohnraum oben sein sollte, wo man die Aussicht auf den See hat, und der Eingangsbereich hier unten, wo früher der Keller war. Damit der Eingangsbereich jedoch nicht dunkel und drückend erscheint, hatten wir die Idee für die Galerie», führt die Architektin aus. In der Tat, die dreigeschossige Galerie gestaltet das Haus von innen offen und hell. Es wird auch sofort klar, dass Holz und Glas eine tragende Rolle spielen, wobei die Wände und Decken aus hellem Tannenholz für eine wohlige Atmosphäre sorgen. Die Galerie ermöglicht der sechsköpfigen Familie ausserdem die Kommunikation über alle Stockwerke hinweg. Rechts von der Garderobe, wo früher das Kinderzimmer des Bauherrn und seines Bruders war, wurde die Trennwand durchbrochen und so Platz für ein Spielzimmer geschaffen. Das Badezimmer in diesem Raum kann als Gästebad genutzt werden. Ebenfalls im Eingangsgeschoss sind der Hauswirtschaftsraum und der alte Luftschutzkeller angesiedelt, der die moderne Technik beherbergt. Strom wird von der Photovoltaikanlage mit Solarbatteriespeicher bezogen. Das Dach ist mit Photovoltaikpanels bestückt, teilweise wurden Blindteile eingesetzt, für ein ästhetisches Gesamtbild auch aus der Vogelperspektive, erklärt Ivanka Beljan. Das Lichtkonzept ist bereits im Eingangsgeschoss spannend. In den Wandschränken eingebaute LED-Streifen beleuchten den Raum abends, ohne zu blenden. Damit die Bewohner nachts über keine Treppenstufen stolpern, wurde eine Beleuchtung unter dem schwungvollen Handlauf installiert. Darüber hinaus sorgt die vom Cameron Design House handgemachte Hängeleuchte durch die Galerie in allen Räumen für eine stimmungsvolle Atmosphäre und wirkt gleichzeitig wie ein Kunstwerk.
Über die Wendeltreppe gelangt man zunächst ins Obergeschoss mit hufförmigem Flur. Vor der Treppe ist das Bürozimmer. Links führt der Flur an zwei Kinderzimmern vorbei zum Elternschlafzimmer mit Ankleide und eigenem Bad, rechts vorbei an zwei weiteren Kinderzimmern, einem Badezimmer und hinaus zum Garten mit Pool. Auch vom Badezimmer aus hat man direkten Zugang zur Terrasse. Die Kinderzimmer sind alle gleich konzipiert: Sie verfügen über einen Einbauschrank, einen gemütlichen Teppichboden und raumhohe Fenster. Wichtig war der Bauherrschaft, dass sich die Fenster in den Kinderzimmern nur oben öffnen lassen. Unten sollen sie geschlossen sein, damit die Kinder zwar zu ihrem selbstgestalteten Steingarten sehen, aber nicht hinausklettern können. Das Elternschlafzimmer ist im Chalet-Stil gehalten. «Die Bauherrin erzählte mir, dass sie Holz im Schlafzimmer wollte, weil es Geborgenheit und Wärme ausstrahlt», erinnert sich die Architektin. Eine Glasscheibe zwischen Schlafzimmer und Bad lässt den mit Holz verkleideten Raum grösser und leichter wirken.
Der zweite Teil der Wendeltreppe verbindet das Obergeschoss mit dem Attikageschoss. Hier stehen Wohnzimmer, Wohnecke für die Kinder, Essbereich und Küche offen zueinander, in einem Raum ohne Stützsäulen, aber mit effektvoller Naturholzdecke, welche die Form des doppelten Walmdachs von innen erkennbar macht. Das Gäste-WC mit Holzverkleidung mutet optisch wie eine kleine Sauna an. Zahlreiche Panoramafenster mit hellem Holzrahmen, die Eckfenster bei der Galerie sowie die Glasschiebetüren zur grosszügigen Terrasse hinaus lassen rundherum viel Tageslicht hinein und eröffnen dem Besucher eine bemerkenswerte Aussicht auf die Berglandschaft und den Vierwaldstättersee. Man kann nun nachvollziehen, weshalb der Bauherr als Kind stets aufs Dach des Elternhauses klettern wollte.
Als Pendant zur Wendeltreppe im Hausinneren hat die Architektin eine Wendeltreppe aus Stein geplant, welche die Terrasse im Attikageschoss mit dem Garten verbindet. So wird auch im Aussenbereich die Kommunikation über die Stockwerke hin ermöglicht. Die Baherrschaft und die Architektin blicken auf eine schöne Planungs- und Bauphase zurück, die reibungslos verlief. Alle sind sich einig: Das Attikageschoss ist besonders gut gelungen. Für die Kinder scheint der Pool das absolute Highlight zu sein. Die Spritzer der Wasserbomben bringt die warme Abendsonne zum Funkeln, die unterdessen über den Bürgenstock gewandert ist und langsam hinter dem Pilatus untergehen wird.
Architekten-Interview
Ivanka Beljan, 2013 kam die Bauherrschaft erstmals auf Sie zu, um dieses Haus zu planen. Fertiggestellt wurde es erst vier Jahre später, im Juni 2017. Das ist viel Zeit für ein Einfamilienhaus, nicht wahr?
Richtig, das ist eher ungewöhnlich. Für die Planung dieses Projekts hat sich die Bauherrschaft aber bewusst viel Zeit genommen. Der Bauherr wusste sehr früh, dass er das Elternhaus übernehmen würde, deshalb kam er zu uns, um beurteilen zu lassen, was man aus dem bestehenden Haus alles machen kann und mit welchen Kosten die verschiedenen Optionen verbunden wären. Die Eltern des Bauherrn planten, im Jahr 2016 in eine Wohnung zu ziehen, die Bauphase hat schliesslich genau ein Jahr gedauert.
Wenn Sie nun das Ergebnis betrachten, gibt es etwas, dass Sie im Nachhinein anders gemacht hätten ?
Wir haben bereits in der Planungsphase jede mögliche Option durchgespielt und zu Ende gedacht. Das Bauherrenpaar, das sehr architekturinteressiert ist, hatte klare Vorstellungen für das Raumkonzept. Alle Möglichkeiten haben sie sorgfältig abgewägt und jede Entscheidung war wohlüberlegt, sodass es nichts gibt, was wir im Nachhinein anders machen würden. Mit dem Sichtholz, dem Naturstein und den klaren Linien ist der Mix aus alpinem Flair und moderner, offener Architektur, den sich die Bauherrschaft gewünscht hat, durchaus gelungen.
Was zeichnet dieses Haus Ihrer Meinung nach aus?
Es ist die warme, gemütliche Atmosphäre, die die natürlichen Materialien Holz und Stein ausstrahlen, und gleichzeitig die offene, moderne Architektur mit grosszügigen Zimmern. Die Offenheit dank der dreigeschossigen Galerie und den Panoramafenstern ist kennzeichnend. Ausserdem integriert sich der Neubau sehr gut in seine Um-gebung, so nimmt er Elemente wie das Satteldach vom benachbarten Bauernhaus auf.
Was war die grösste Herausforderung bei diesem Projekt ?
Das Dach besteht quasi aus zwei Walmdächern, die eine unterschiedliche Neigung aufweisen. Die Herausforderung bestand darin, die Dächer so anzuordnen, dass die sichtbare Konstruktion im Hausinneren ruhig und harmonisch wirkt und der Übergang von den Wänden und Fenstern zum Dach auch vom Material her stimmt. Es war schön, sich mit diesem Thema auseinanderzusetzen, wir haben dabei viel mit Visualisierungen gearbeitet.
TECHNISCHE ANGABEN


[ Architektur ]
Beljan + Feucht Architekten, Meggen beljanfeucht.ch
[ Konstruktion ]
Holzbaukonstruktion | Walmdach, Eternit; Solarpaneele | Fassade: Aussenputz Besenstrich
[ Raumangebot ]
Nettowohnfläche: 285,5 m² | Anzahl Zimmer: 8,5
[ Ausbau ]
Boden: Landhausdielen rustic, Eiche; Feinsteinzeugplatten in den Nassräumen | Wände: Putz, Dreischichtplatte Fichte/Tanne | Decken: Dreischichtplatte Fichte/Tanne | Dachkonstruktion sichtbar | Holz-Metall-Fenster, innen Fichte/Tanne lasiert
[ Technik ]
Erdsonde mit Kühlung | Thermische und elektrische Solaranlage | Fussbodenheizung | ein Innencheminée, zwei Aussencheminées
















