Am höchsten Weinberg Europas
Am Fuss des Heida-Dorfes Visperterminen und nur einen Steinwurf von der Visper Altstadt entfernt schmiegt sich dieser Bau an die Rebberge des kräftigen Pinot Noir. Geplant war ein Einfamilienhaus, die Gegebenheiten der Parzelle führten zu einer anderen Lösung.

Visp ist mit seinen rund 7500 Einwohnern keine Grossstadt, doch nimmt die Ortschaft eine wichtige Funktion als Knotenpunkt in der Oberwalliser Wirtschafts- und Kulturwelt ein. Weinliebhabern ist Visp aber vor allem wegen des exquisiten Weins der St.-Jodern-Kellerei ein Begriff. Das Weingut im Heida-Dorf Visperterminen erstreckt sich auf einer Höhe von 650 bis 1150 m ü.M. und ist somit der höchstgelegene Weinberg Europas. Am Fuss dieses Weingutes, gleich neben den Reben, wo die Trauben des berühmten Heida heranwachsen, liegt das Visper Quartier Hubel. Einerseits ist man von hier aus in wenigen Minuten in der Natur, andererseits liegen auch die Altstadt und der Bahnhof nur einen Steinwurf entfernt. Hier ein Baugrundstück zu finden, ist nicht einfach. Umso glücklicher schätzt sich die Bauherrschaft, dass der Onkel des Hausherrn an dieser begehrten Lage ein solches Grundstück in seinem Besitz wusste. Da er selbst nicht vorhatte, die Parzelle zu bebauen, trat er das Grundstück an seinen Neffen ab, der für sich und seine Familie ein neues Zuhause schaffen wollte. Das ursprünglich geplante Einfamilienhaus wurde aufgrund raumplanerischer Überlegungen mit einer grossen und einer kleinen Mietwohnung ergänzt. Ebenso fand die Anwaltskanzlei der Bauherrin Unterschlupf in der neuen Liegenschaft auf vier Ebenen.Um ihr Vorhaben in die Tat umzusetzen, wandte sich die Bauherrschafft an einen befreundeten Architekten. Als Grundparameter für dieses Bauvorhaben waren neben der Lage am Fuss des Rebbergs sowie dem Wunsch, diesen Rebberg als zentrales Element zu berücksichtigen, auch eine offene Grundrissgestaltung sowie eine karge Materialwahl ausschlaggebend. «Sichtbeton gefiel uns schon immer sehr gut, deshalb haben wir uns an unseren Freund Matthias Werlen gewandt, der sich damit gut auskennt», erläutert der Bauherr die Ausgangslage. Bei der weiteren Umsetzung genoss Matthias Werlen grosse Freiheiten, was jeder Architekt zu schätzen weiss. Entstanden ist ein Bau, bei dem die Hauptwohnung mit Attikageschoss auf der Höhe des Weinbergs liegt. Der Umriss des Gebäudes orientiert sich an den Gegebenheiten der Parzelle.
Konsequente Architektur
«Durch die Anhebung des Gebäudes konnte die Sonneneinstrahlung verbessert werden, ohne dass dabei der Windschutz durch den vorgelagerten Rebberg verloren ging», beschreibt Matthias Werlen die Vorzüge der Architektur. Somit befindet sich im Erdgeschoss neben der Garage auch das Anwaltsbüro der Bauherrin. Eine Etage darüber liegt eine fünf Zimmer grosse Mietwohnung, die vom südlich vorgelagerten Gartenplatz profitiert. Dadurch fand die Wohnung der Bauherrschaft im zweiten Obergeschoss direkten Anschluss an den Rebberg, erklärt der Architekt weiter.
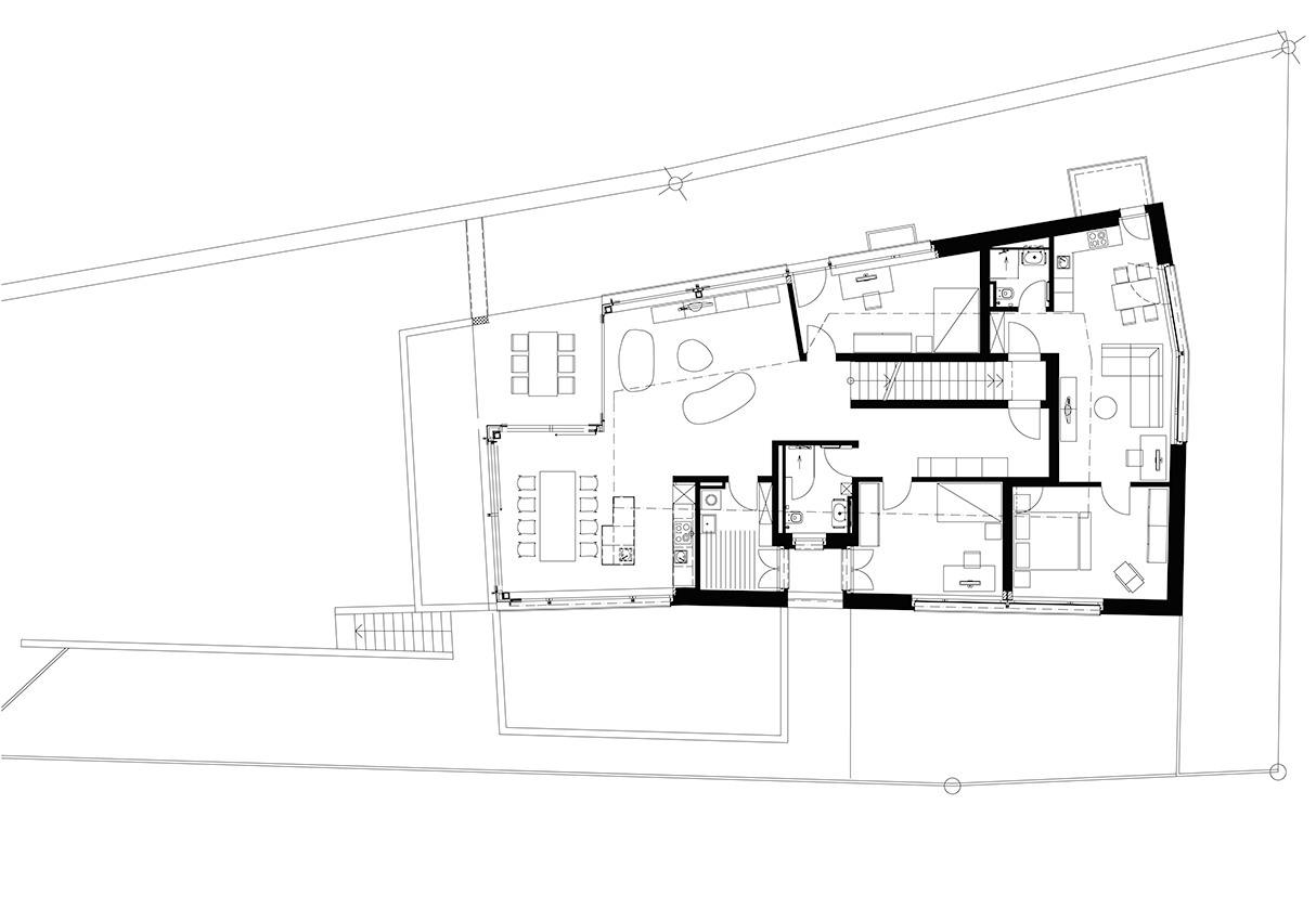
Das Raumprogramm der Hauptwohnung umfasst nebst dem offenen, aber clever verwinkelten Wohnbereich mit Küche und Terrrasse zwei Kinderzimmer, ein Badezimmer, eine Vorratskammer mit Waschküche sowie ein Attikageschoss. Dort sind ein Büro, ein Badezimmer und das Elternschlafzimmer mit Ankleide und geräumiger Terrasse angesiedelt. Während der Schlaftrakt nach Nordosten ausgerichtet ist, kommen die Küche und der Essplatz in den Genuss der Abendsonne. Der Bodenbelag aus warmem Eichenholz, der sich über alle Zimmer und die Treppe zieht, bildet einen warmen Kontrast zu den weissen Wänden und der puristischen Einrichtung. Für die ästhetische Erscheinung spielt neben dem Holz im Rauminneren auch Beton an der Fassade eine prägende Rolle. «Anfangs hatte ich Bedenken, dass der Sichtbeton eine unschöne Struktur aufweisen würde, doch der Bauleiter hat ein makelloses Ergebnis erzielt», so der Bauherr. Die aufwändige Gestaltung kann sich sehen lassen, auch von der Terrasse aus, die den Wohnraum nach aussen erweitert. Farblich unterstützt wird die zurückhaltende Architektur durch verschiedene Erdtöne. Die umliegende Naturlandschaft und der Rebberg unmittelbar neben dem Haus setzen durch die grosse Verglasung grüne Akzente im Rauminneren.
Die Bauherrschaft schätzt darüber hinaus die Wandlungsfähigkeit ihrer Liegenschaft: Die kleine, neben der Bauherrenwohnung gelegene zweite Mietwohnung im Umfang von eineinhalb Zimmern kann bei Bedarf später ausgebaut und direkt mit der Hauptwohnung verbunden werden. Das Bauherrenpaar wollte bewusst keinen Lift einbauen. Falls sie im Alter Schwierigkeiten mit Treppensteigen hätten, bestünde die Möglichkeit, in die jetzt vermietete Parterrewohnung zu ziehen, denn von dort aus könnte man ohne grossen Aufwand einen Zugang über den Garten anbringen lassen.
TECHNISCHE ANGABEN


[ Architektur ]
werlen matthias architektur ag, Brig
tiso.ch
[ Konstruktion ]
Massivbauweise in Beton und Backstein | Zweischalenmauerwerk, Betonfassade aussen tragend | Flachdach bekiest
[ Raumangebot ]
Hauptwohnung im 2. OG: Nettowohnfläche 193 m²; 5,5 Zimmer | Mietwohnung im 2. OG: 56 m²; 1,5 Zimmer | Mietwohnung im 1. OG: 183 m²; 5,5 Zimmer | Kanzlei im EG: 81 m²
[ Ausbau ]
Boden: Eichenparkett, Platten in Badezimmern | Wandbeläge: Kaklkputzabglättung | Fenster: Holz-Metall-Fenster mit Aluzargen; Rafflamellenstoren
[ Technik ]
Erdsondenbohrung mit Wärmepumpe












